検索中
宿泊プラン・予約
{"hotel_photo":{"photo_gallery_agent_id":"10176","photo_gallery_agent_name":"\u697d\u5929\u30c8\u30e9\u30d9\u30eb"},"plan_info":{"plan_count":4,"group_count":4,"plan_list":[{"hotel_id":41573,"hotel_name":"\uff2b\u2019\uff53\u3000\uff36\uff49\uff4c\uff4c\uff41\uff47\uff45\u3000\uff2b\uff41\uff52\uff55\uff49\uff5a\uff41\uff57\uff41","phone":"0267-31-0312","plan_id":1082878811,"plan_code":"10661835","plan_name":"\u3010\u7981\u7159\u3011\u5927\u4eba\u306e\u8efd\u4e95\u6ca22\u4eba\u65c5\u306b\u30ad\u30c3\u30c1\u30f3\u4ed8\u304d\u30e1\u30be\u30cd\u30c3\u30c8","room_id":791283259,"room_code":"10128564|10661835","room_name":"\u30c4\u30a4\u30f3 \/ \u3010\u7981\u7159\u3011\u5927\u4eba\u306e\u8efd\u4e95\u6ca22\u4eba\u65c5\u306b\u30ad\u30c3\u30c1\u30f3\u4ed8\u304d\u30e1\u30be\u30cd\u30c3\u30c8 \/ 43.00\u5e73\u7c73","room_type_name":"\u30c4\u30a4\u30f3","room_org_name":"\u3010\u7981\u7159\u3011\u5927\u4eba\u306e\u8efd\u4e95\u6ca22\u4eba\u65c5\u306b\u30ad\u30c3\u30c1\u30f3\u4ed8\u304d\u30e1\u30be\u30cd\u30c3\u30c8","room_size":"43.00\u5e73\u7c73","room_size_omit":"43\u33a1","room_size_dtl":"43.00\u33a1","appeal_text":"\u3086\u3063\u305f\u308a\u3068\u975e\u65e5\u5e38\u306e\u6642\u3092\u904e\u3054\u3059\u30fb\u30fb\u30fb\u65e5\u5e38\u306e\u7169\u308f\u3057\u3055\u304b\u3089\u96e2\u308c\u3001\u6728\u3092\u3075\u3093\u3060\u3093\u306b\u4f7f\u3063\u305f\u304a\u90e8\u5c4b\u3067\u306e\u3093\u3073\u308a\u3059\u308b\u306e\u306f\u3044\u304b\u304c\u3067\u3059\u304b\u3002\u3054\u5bb6\u65cf\u306f\u3082\u3061\u308d\u3093\u3054\u53cb\u4eba\u3001\u540c\u7a93\u4f1a\u3001\u30aa\u30d5\u30b5\u30a4\u30c8\u30df\u30fc\u30c6\u30a3\u30f3\u30b0\u3001\u30bb\u30df\u30ca\u30fc\u306a\u3069\u5e30\u308a\u306e\u2026","room_type":2,"smoking":1,"pln_flgs_arr":["10002","10101","30001","30001","30003","30017","30032","30034","30036","30049","30065","30801","30901"],"agent_id":39979,"agent_logo":"https:\/\/www.tour.ne.jp\/element\/j_hotel\/shared\/images\/ic_agt_39979.gif","agent_name":"Yahoo!\u30c8\u30e9\u30d9\u30eb","is_inaccurate_price_agent":false,"accept_type":null,"pay_type":0,"pay_cash_local":1,"brand_id":null,"bf_stat":1,"dinner_stat":1,"lunch_stat":1,"unit_price":[[17821,0,0,0,0,0,0]],"unit_price_orig":[[18000,0,0,0,0,0,0]],"total_price_before":35642,"total_price_orig":36000,"total_price":35642,"discount_value":358,"discount":0,"stock_stat":5,"stock":2,"stock_up_time":"1\u65e5\u524d","up_date_interval":125538,"vacancy_checked":2,"realtime":"f","url_plan":"https:\/\/www.tour.ne.jp\/j_hotel\/agt_link\/?hotel_id=41573&plan_id=1082878811&room_id=791283259&plan_code=10661835&room_code=10128564|10661835&agent_id=39979&stay=1&adult=2&room=1&price_before=35642&price=35642&price_orig=36000&discount_value=358&plan_url=&pay_type=0&cash_local=1&dsp_group=1&call=3&display_rank=1_1_1&goto_type=0&gl=0","agent_url_pc":null,"agent_url_sp":null,"coupon_key":null,"coupon_code":null,"group_sort":1,"group_plan_sort":1,"group_plan_count":1,"goto_type":0,"goto_price":{"payment":35642,"discount":0,"coupon":0,"discount_limit":0,"coupon_limit":0},"goto_end_date":"20230630","goto_out_of_term":2,"goto_login":2,"goto_coupon_type":3,"goto_nationwide_data_arr":[{"campaign_code":"174","campaign_name":"\u4fe1\u5dde\u5272SPECIAL","campaign_dp_ymd_end":"20230630","coupon_list":[{"agent_id":"39979","agent_name":"Yahoo!\u30c8\u30e9\u30d9\u30eb","coupon_no":"0","coupon_name":"","url":""}]}],"goto_block_text":null,"invoice":{"inv_dsp_type":1,"inv_on_pay_type":1,"inv_pre_pay_type":null},"rakuten_coupon_dtl":{"coupon_first_code":null,"coupon_first_name":null,"discount_first_value":0,"coupon_second_code":null,"coupon_second_name":null,"discount_second_value":0},"vendor_detail":{"rsv_member":"3","rsv_member_advance":null,"rsv_member_local":"3","rsv_pay_bank":"0","rsv_pay_card_advance":0,"rsv_pay_card_local":1,"rsv_pay_debitcard":1,"rsv_pay_code":1,"rsv_pay_emoney":0,"rsv_pay_giftcard":0,"rsv_pay_store":0,"rsv_pay_cash":1,"rsv_card_preregister":0,"rsv_card_list_advance":{"visa":1,"master":1,"jcb":1,"diners":1,"amex":1,"discover":0,"union_pay":0},"rsv_card_list_local":{"visa":1,"master":1,"jcb":0,"diners":0,"amex":0},"rsv_code_list":{"paypay":1,"line_pay":0},"rsv_emoney_list":{"apple_pay":0},"rsv_giftcard_list":{"jtb_travel_gift":0},"rsv_pay_card":"1","rsv_card_list":{"visa":"1","master":"1","jcb":"1","diners":"1","amex":"1"},"rsv_note":null,"rsv_card_note_advance_pc":"","rsv_card_note_advance_sp":"","rsv_card_note_local_pc":"","rsv_card_note_local_sp":"","rsv_code_note_pc":"\u4f1a\u54e1\u767b\u9332\u5fc5\u9808","rsv_code_note_sp":"\u4f1a\u54e1\u767b\u9332\u5fc5\u9808","rsv_bank_note_pc":"","rsv_bank_note_sp":"","rsv_payment_note_pc":"","rsv_payment_note_sp":"","rsv_transition_payment_caution_note_pc":"","rsv_transition_payment_caution_note_sp":"","rsv_transition_note_arr_sp":[],"rsv_transition_payment_title":"\u30b5\u30a4\u30c8\u79fb\u52d5\u5f8c\u306e\u78ba\u8a8d","rsv_transition_payment_price_detail_title":"\u30b5\u30a4\u30c8\u79fb\u52d5\u5f8c\u306e\u6ce8\u610f","rsv_transition_caution_note_arr_pc":["\u79fb\u52d5\u5f8c\u306e\u4e88\u7d04\u30b5\u30a4\u30c8\u3067\u3001\u5546\u54c1\u30fb\u4e88\u7d04\u5185\u5bb9\u306b\u3064\u3044\u3066\u9593\u9055\u3044\u304c\u306a\u3044\u304b<strong>\u5fc5\u305a\u518d\u78ba\u8a8d<\/strong>\u3057\u3066\u304f\u3060\u3055\u3044\u3002"],"rsv_transition_caution_note_arr_sp":["\u79fb\u52d5\u5f8c\u306e\u4e88\u7d04\u30b5\u30a4\u30c8\u3067\u3001\u5546\u54c1\u30fb\u4e88\u7d04\u5185\u5bb9\u306b\u3064\u3044\u3066\u9593\u9055\u3044\u304c\u306a\u3044\u304b<strong>\u5fc5\u305a\u518d\u78ba\u8a8d<\/strong>\u3057\u3066\u304f\u3060\u3055\u3044\u3002"]},"point_list":{"point_info":[{"name":"PayPay\u30dd\u30a4\u30f3\u30c8","unit":"\u30dd\u30a4\u30f3\u30c8","rate_min":"1","rate_max":"1","tax":"1","logo_url":"","point_min":356,"logo_width":"","logo_height":""}]},"hotel_price_min":35642,"hotel_price_max":64000,"free_cancellation_days":31,"free_cancellation_date":null,"free_cancellation_time":null,"non_refundable_days":7,"non_refundable_date":null,"non_refundable_time":null,"cancellation_policy_txt":"<p>\u3054\u4e88\u7d04\u5f8c\u306f\u4e0b\u8a18\u306e\u898f\u5b9a\u306b\u5f93\u3063\u3066\u30ad\u30e3\u30f3\u30bb\u30eb\u6599\u304c\u767a\u751f\u3057\u307e\u3059\u3002<\/p>\n\u30c1\u30a7\u30c3\u30af\u30a4\u30f3\u65e5 31\u65e5\u524d\u307e\u3067\uff1a\u7121\u6599\n\u30c1\u30a7\u30c3\u30af\u30a4\u30f3\u65e5 30\u65e5\u524d\uff5e\uff1a\u5bbf\u6cca\u6599\u91d1\u306e20%\n\u30c1\u30a7\u30c3\u30af\u30a4\u30f3\u65e5 14\u65e5\u524d\uff5e\uff1a\u5bbf\u6cca\u6599\u91d1\u306e50%\n\u30c1\u30a7\u30c3\u30af\u30a4\u30f3\u65e5 7\u65e5\u524d\uff5e\uff1a\u5bbf\u6cca\u6599\u91d1\u306e100%\n\u7121\u9023\u7d61\u30ad\u30e3\u30f3\u30bb\u30eb\uff1a\u5bbf\u6cca\u6599\u91d1\u306e100%\n<p>\u30ad\u30e3\u30f3\u30bb\u30eb\u898f\u5b9a\u306e\u8a73\u7d30\u306f\u4e88\u7d04\u30b5\u30a4\u30c8\u306b\u3066\u518d\u5ea6<strong>\u5fc5\u305a<\/strong>\u3054\u78ba\u8a8d\u304f\u3060\u3055\u3044\u3002<\/p>","cancellation_data_type":1,"cancellation_kwd_type":null,"chkin_from_full":"16:00","chkin_till_full":"19:00","chkout_before_full":"10:00","image_info":[{"category":"plan","count":0,"url":null,"small_url":null,"caption":null},{"category":"room","count":2,"url":"https:\/\/www.img-ikyu.com\/contents\/common\/image\/acc1\/00906261\/1\/xl\/14004704.jpg","small_url":"https:\/\/www.img-ikyu.com\/contents\/common\/image\/acc1\/00906261\/1\/md\/14004704.jpg?auto=compress,format&lossless=0&fit=crop&w=130&h=100","caption":"2\u4eba\u90e8\u5c4b\u30ea\u30d3\u30f3\u30b0"},{"category":"meal","count":0,"url":null,"small_url":null,"caption":null}],"cancellation_status":"\u30ad\u30e3\u30f3\u30bb\u30eb\u7121\u6599(\u671f\u9650\u3042\u308a)","chiiki_kanko_coupon_data_arr":null,"chiiki_kanko_coupon_block_text":null,"area_info":{"dist_id":5,"coty_id":84}},{"hotel_id":41573,"hotel_name":"\uff2b\u2019\uff53\u3000\uff36\uff49\uff4c\uff4c\uff41\uff47\uff45\u3000\uff2b\uff41\uff52\uff55\uff49\uff5a\uff41\uff57\uff41","phone":"0267-31-0312","plan_id":1585413606,"plan_code":"2ksvllg|2ksvllg|0_0","plan_name":"\u3010\u7981\u7159\u3011\u5927\u4eba\u306e\u8efd\u4e95\u6ca22\u4eba\u65c5\u306b\u30ad\u30c3\u30c1\u30f3\u4ed8\u304d\u30e1\u30be\u30cd\u30c3\u30c8","room_id":189490918,"room_code":"2ksvllg","room_name":"\u30c4\u30a4\u30f3 \/ \u3010\u7981\u7159\u3011\u5927\u4eba\u306e\u8efd\u4e95\u6ca22\u4eba\u65c5\u306b\u30ad\u30c3\u30c1\u30f3\u4ed8\u304d\u30e1\u30be\u30cd\u30c3\u30c8","room_type_name":"\u30c4\u30a4\u30f3","room_org_name":"\u3010\u7981\u7159\u3011\u5927\u4eba\u306e\u8efd\u4e95\u6ca22\u4eba\u65c5\u306b\u30ad\u30c3\u30c1\u30f3\u4ed8\u304d\u30e1\u30be\u30cd\u30c3\u30c8","room_size":null,"room_size_omit":null,"room_size_dtl":null,"appeal_text":"\u30c1\u30a7\u30c3\u30af\u30a4\u30f3\u304c\u4e88\u5b9a\u6642\u523b\u3092\u904e\u304e\u308b\u5834\u5408\u306f\u5fc5\u305a\u3054\u9023\u7d61\u4e0b\u3055\u3044\u3002\uff0c\u306b\u304e\u3084\u304b\u306a\u304a\u5b50\u69d8\u3001\u4e73\u5e7c\u5150\u306f\u3054\u76f8\u8ac7\u4e0b\u3055\u3044(\u304a\u5b50\u69d8\u306e\u6dfb\u3044\u5bdd\u306f10\u6b73\u672a\u6e80\u30d9\u30c3\u30c92\u3064\u306b\u5bfe\u30571\u540d\u307e\u3067)\u3002\uff0c\u30da\u30c3\u30c8\u4e0d\u53ef\uff0c\u30ac\u30b9\u30b3\u30f3\u30ed\u306e\u6301\u8fbc\u307f\u4e0d\u53ef\u3010\u4f7f\u2026","room_type":2,"smoking":1,"pln_flgs_arr":["10002","10101","30001","30001","30003","30010","30017","30018","30025","30032","30063","30064","30801","30901"],"agent_id":10176,"agent_logo":"https:\/\/www.tour.ne.jp\/element\/j_hotel\/shared\/images\/ic_agt_10176.gif","agent_name":"\u697d\u5929\u30c8\u30e9\u30d9\u30eb","is_inaccurate_price_agent":false,"accept_type":null,"pay_type":2,"pay_cash_local":1,"brand_id":173,"bf_stat":1,"dinner_stat":1,"lunch_stat":1,"unit_price":[[18000,0,0,0,0,0,0]],"unit_price_orig":[[18000,0,0,0,0,0,0]],"total_price_before":36000,"total_price_orig":36000,"total_price":36000,"discount_value":0,"discount":0,"stock_stat":5,"stock":2,"stock_up_time":"1\u65e5\u524d","up_date_interval":99860,"vacancy_checked":2,"realtime":"f","url_plan":"https:\/\/www.tour.ne.jp\/j_hotel\/agt_link\/?hotel_id=41573&plan_id=1585413606&room_id=189490918&plan_code=2ksvllg|2ksvllg|0_0&room_code=2ksvllg&agent_id=10176&stay=1&adult=2&room=1&price_before=36000&price=36000&price_orig=36000&plan_url=&pay_type=2&cash_local=1&dsp_group=1&call=3&display_rank=1_2_1&goto_type=0&gl=0","agent_url_pc":null,"agent_url_sp":null,"coupon_key":null,"coupon_code":null,"group_sort":2,"group_plan_sort":1,"group_plan_count":1,"goto_type":0,"goto_price":{"payment":36000,"discount":0,"coupon":0,"discount_limit":0,"coupon_limit":0},"goto_end_date":"20230630","goto_out_of_term":2,"goto_login":1,"goto_coupon_type":1,"goto_nationwide_data_arr":[{"campaign_code":"174","campaign_name":"\u4fe1\u5dde\u5272SPECIAL","campaign_dp_ymd_end":"20230630","coupon_list":[{"agent_id":"10176","agent_name":"\u697d\u5929\u30c8\u30e9\u30d9\u30eb","coupon_no":"0","coupon_name":"","url":""}]}],"goto_block_text":null,"invoice":{"inv_dsp_type":1,"inv_on_pay_type":1,"inv_pre_pay_type":1},"rakuten_coupon_dtl":{"coupon_first_code":null,"coupon_first_name":null,"discount_first_value":0,"coupon_second_code":null,"coupon_second_name":null,"discount_second_value":0},"vendor_detail":{"rsv_member":"2","rsv_member_advance":"1","rsv_member_local":"2","rsv_pay_bank":"0","rsv_pay_card_advance":1,"rsv_pay_card_local":1,"rsv_pay_debitcard":1,"rsv_pay_code":0,"rsv_pay_emoney":0,"rsv_pay_giftcard":0,"rsv_pay_store":0,"rsv_pay_cash":1,"rsv_card_preregister":0,"rsv_card_list_advance":{"visa":1,"master":1,"jcb":1,"diners":1,"amex":1,"discover":0,"union_pay":0},"rsv_card_list_local":{"visa":1,"master":1,"jcb":0,"diners":0,"amex":0},"rsv_code_list":{"paypay":0,"line_pay":0},"rsv_emoney_list":{"apple_pay":0},"rsv_giftcard_list":{"jtb_travel_gift":0},"rsv_pay_card":"1","rsv_card_list":{"visa":"1","master":"1","jcb":"1","diners":"1","amex":"1"},"rsv_note":null,"rsv_card_note_advance_pc":"","rsv_card_note_advance_sp":"","rsv_card_note_local_pc":"","rsv_card_note_local_sp":"","rsv_code_note_pc":"","rsv_code_note_sp":"","rsv_bank_note_pc":"","rsv_bank_note_sp":"","rsv_payment_note_pc":"","rsv_payment_note_sp":"","rsv_transition_payment_caution_note_pc":"\u697d\u5929\u30c8\u30e9\u30d9\u30eb\u79fb\u52d5\u5f8c\u3001<strong>1\u6cca1\u540d\u3042\u305f\u308a\u306e\u6d88\u8cbb\u7a0e\u8fbc<\/strong>\u306e\u6599\u91d1\u304c\u8868\u793a\u3055\u308c\u307e\u3059\u304c\u3001\u4e88\u7d04\u6642\u306b\u4e0a\u8a18\u5408\u8a08\u6599\u91d1\u3067\u8868\u793a\u3055\u308c\u307e\u3059\u3002","rsv_transition_payment_caution_note_sp":"\u697d\u5929\u30c8\u30e9\u30d9\u30eb\u79fb\u52d5\u5f8c\u3001<strong>1\u6cca1\u540d\u3042\u305f\u308a\u306e\u6d88\u8cbb\u7a0e\u8fbc<\/strong>\u306e\u6599\u91d1\u304c\u8868\u793a\u3055\u308c\u307e\u3059\u304c\u3001\u4e88\u7d04\u6642\u306b\u4e0a\u8a18\u5408\u8a08\u6599\u91d1\u3067\u8868\u793a\u3055\u308c\u307e\u3059\u3002","rsv_transition_note_arr_sp":[],"rsv_transition_payment_title":"\u30b5\u30a4\u30c8\u79fb\u52d5\u5f8c\u306e<strong>\u6ce8\u610f<\/strong>","rsv_transition_payment_price_detail_title":"\u30b5\u30a4\u30c8\u79fb\u52d5\u5f8c\u306e\u6ce8\u610f","rsv_transition_caution_note_arr_pc":["\u697d\u5929\u30c8\u30e9\u30d9\u30eb\u79fb\u52d5\u5f8c\u3001<strong>1\u6cca1\u540d\u3042\u305f\u308a\u306e\u6d88\u8cbb\u7a0e\u8fbc<\/strong>\u306e\u6599\u91d1\u304c\u8868\u793a\u3055\u308c\u307e\u3059\u304c\u3001\u4e88\u7d04\u6642\u306b\u4e0a\u8a18\u5408\u8a08\u6599\u91d1\u3067\u8868\u793a\u3055\u308c\u307e\u3059\u3002","\u79fb\u52d5\u5f8c\u306e\u4e88\u7d04\u30b5\u30a4\u30c8\u3067\u3001\u5546\u54c1\u30fb\u4e88\u7d04\u5185\u5bb9\u306b\u3064\u3044\u3066\u9593\u9055\u3044\u304c\u306a\u3044\u304b<strong>\u5fc5\u305a\u518d\u78ba\u8a8d<\/strong>\u3057\u3066\u304f\u3060\u3055\u3044\u3002"],"rsv_transition_caution_note_arr_sp":["\u697d\u5929\u30c8\u30e9\u30d9\u30eb\u79fb\u52d5\u5f8c\u3001<strong>1\u6cca1\u540d\u3042\u305f\u308a\u306e\u6d88\u8cbb\u7a0e\u8fbc<\/strong>\u306e\u6599\u91d1\u304c\u8868\u793a\u3055\u308c\u307e\u3059\u304c\u3001\u4e88\u7d04\u6642\u306b\u4e0a\u8a18\u5408\u8a08\u6599\u91d1\u3067\u8868\u793a\u3055\u308c\u307e\u3059\u3002","\u79fb\u52d5\u5f8c\u306e\u4e88\u7d04\u30b5\u30a4\u30c8\u3067\u3001\u5546\u54c1\u30fb\u4e88\u7d04\u5185\u5bb9\u306b\u3064\u3044\u3066\u9593\u9055\u3044\u304c\u306a\u3044\u304b<strong>\u5fc5\u305a\u518d\u78ba\u8a8d<\/strong>\u3057\u3066\u304f\u3060\u3055\u3044\u3002"]},"point_list":{"point_info":[{"name":"\u697d\u5929\u30dd\u30a4\u30f3\u30c8","unit":"\u30dd\u30a4\u30f3\u30c8","rate_min":"1","rate_max":"10","tax":"0","logo_url":"","point_min":333,"logo_width":"","logo_height":""}]},"hotel_price_min":35642,"hotel_price_max":64000,"free_cancellation_days":15,"free_cancellation_date":null,"free_cancellation_time":"23:59","non_refundable_days":0,"non_refundable_date":null,"non_refundable_time":"00:00","cancellation_policy_txt":"<p>\u3054\u4e88\u7d04\u5f8c\u306f\u4e0b\u8a18\u306e\u898f\u5b9a\u306b\u5f93\u3063\u3066\u30ad\u30e3\u30f3\u30bb\u30eb\u6599\u304c\u767a\u751f\u3057\u307e\u3059\u3002<\/p>\n14\u65e5\u524d\u304b\u3089\uff1a\u5bbf\u6cca\u6599\u91d1\u306e20\uff05\n7\u65e5\u524d\u304b\u3089\uff1a\u5bbf\u6cca\u6599\u91d1\u306e30\uff05\n\u524d\u65e5\uff1a\u5bbf\u6cca\u6599\u91d1\u306e50\uff05\n\u5f53\u65e5\uff1a\u5bbf\u6cca\u6599\u91d1\u306e100\uff05\n\u9023\u7d61\u306a\u3057\u306e\u4e0d\u6cca\/\u4e0d\u7740\uff1a\u5bbf\u6cca\u6599\u91d1\u306e100\uff05\n<p>\u30ad\u30e3\u30f3\u30bb\u30eb\u898f\u5b9a\u306e\u8a73\u7d30\u306f\u4e88\u7d04\u30b5\u30a4\u30c8\u306b\u3066\u518d\u5ea6<strong>\u5fc5\u305a<\/strong>\u3054\u78ba\u8a8d\u304f\u3060\u3055\u3044\u3002<\/p>","cancellation_data_type":1,"cancellation_kwd_type":null,"chkin_from_full":null,"chkin_till_full":null,"chkout_before_full":null,"image_info":[{"category":"plan","count":0,"url":null,"small_url":null,"caption":null},{"category":"room","count":1,"url":"https:\/\/img.travel.rakuten.co.jp\/share\/image_up\/160842\/LARGE\/c0d413488becca21fad48a8140f21b3a3a884b14.47.1.26.2.jpg","small_url":"https:\/\/img.travel.rakuten.co.jp\/share\/image_up\/160842\/LARGE\/c0d413488becca21fad48a8140f21b3a3a884b14.47.1.26.2.jpg","caption":null},{"category":"meal","count":0,"url":null,"small_url":null,"caption":null}],"cancellation_status":"\u30ad\u30e3\u30f3\u30bb\u30eb\u7121\u6599(\u671f\u9650\u3042\u308a)","chiiki_kanko_coupon_data_arr":null,"chiiki_kanko_coupon_block_text":null,"area_info":{"dist_id":5,"coty_id":84}},{"hotel_id":41573,"hotel_name":"\uff2b\u2019\uff53\u3000\uff36\uff49\uff4c\uff4c\uff41\uff47\uff45\u3000\uff2b\uff41\uff52\uff55\uff49\uff5a\uff41\uff57\uff41","phone":"0267-31-0312","plan_id":1082878804,"plan_code":"10661840","plan_name":"\u3010\u7981\u7159\u3011\u5b50\u3069\u3082\u306b\u201c\u4f53\u9a13\u201d\u3092\u3002\u5bb6\u65cf\u3067\u6cca\u307e\u308c\u308b\u30e1\u30be\u30cd\u30c3\u30c8","room_id":791285052,"room_code":"10128568|10661840","room_name":"\u30c4\u30a4\u30f3 \/ \u3010\u7981\u7159\u3011\u5bb6\u65cf\u30fb\u89aa\u5b50\u3067\u4f53\u9a13\u3059\u308b\u8efd\u4e95\u6ca24\u4eba\u90e8\u5c4b\u30e1\u30be\u30cd\u30c3\u30c8 \/ 62.00\u5e73\u7c73","room_type_name":"\u30c4\u30a4\u30f3","room_org_name":"\u3010\u7981\u7159\u3011\u5bb6\u65cf\u30fb\u89aa\u5b50\u3067\u4f53\u9a13\u3059\u308b\u8efd\u4e95\u6ca24\u4eba\u90e8\u5c4b\u30e1\u30be\u30cd\u30c3\u30c8","room_size":"62.00\u5e73\u7c73","room_size_omit":"62\u33a1","room_size_dtl":"62.00\u33a1","appeal_text":"\u3086\u3063\u305f\u308a\u3068\u975e\u65e5\u5e38\u306e\u6642\u3092\u904e\u3054\u3059\u30fb\u30fb\u30fb\u65e5\u5e38\u306e\u7169\u308f\u3057\u3055\u304b\u3089\u96e2\u308c\u3001\u6728\u3092\u3075\u3093\u3060\u3093\u306b\u4f7f\u3063\u305f\u304a\u90e8\u5c4b\u3067\u306e\u3093\u3073\u308a\u3059\u308b\u306e\u306f\u3044\u304b\u304c\u3067\u3059\u304b\u3002\u3054\u5bb6\u65cf\u306f\u3082\u3061\u308d\u3093\u3054\u53cb\u4eba\u3001\u540c\u7a93\u4f1a\u3001\u30aa\u30d5\u30b5\u30a4\u30c8\u30df\u30fc\u30c6\u30a3\u30f3\u30b0\u3001\u30bb\u30df\u30ca\u30fc\u306a\u3069\u5e30\u308a\u306e\u2026","room_type":2,"smoking":1,"pln_flgs_arr":["10002","10101","30001","30001","30003","30017","30032","30034","30036","30047","30049","30065","30801","30901"],"agent_id":39979,"agent_logo":"https:\/\/www.tour.ne.jp\/element\/j_hotel\/shared\/images\/ic_agt_39979.gif","agent_name":"Yahoo!\u30c8\u30e9\u30d9\u30eb","is_inaccurate_price_agent":false,"accept_type":null,"pay_type":0,"pay_cash_local":1,"brand_id":null,"bf_stat":1,"dinner_stat":1,"lunch_stat":1,"unit_price":[[31681,0,0,0,0,0,0]],"unit_price_orig":[[32000,0,0,0,0,0,0]],"total_price_before":63362,"total_price_orig":64000,"total_price":63362,"discount_value":638,"discount":0,"stock_stat":5,"stock":2,"stock_up_time":"1\u65e5\u524d","up_date_interval":125538,"vacancy_checked":2,"realtime":"f","url_plan":"https:\/\/www.tour.ne.jp\/j_hotel\/agt_link\/?hotel_id=41573&plan_id=1082878804&room_id=791285052&plan_code=10661840&room_code=10128568|10661840&agent_id=39979&stay=1&adult=2&room=1&price_before=63362&price=63362&price_orig=64000&discount_value=638&plan_url=&pay_type=0&cash_local=1&dsp_group=1&call=3&display_rank=1_3_1&goto_type=0&gl=0","agent_url_pc":null,"agent_url_sp":null,"coupon_key":null,"coupon_code":null,"group_sort":3,"group_plan_sort":1,"group_plan_count":1,"goto_type":0,"goto_price":{"payment":63362,"discount":0,"coupon":0,"discount_limit":0,"coupon_limit":0},"goto_end_date":"20230630","goto_out_of_term":2,"goto_login":2,"goto_coupon_type":3,"goto_nationwide_data_arr":[{"campaign_code":"174","campaign_name":"\u4fe1\u5dde\u5272SPECIAL","campaign_dp_ymd_end":"20230630","coupon_list":[{"agent_id":"39979","agent_name":"Yahoo!\u30c8\u30e9\u30d9\u30eb","coupon_no":"0","coupon_name":"","url":""}]}],"goto_block_text":null,"invoice":{"inv_dsp_type":1,"inv_on_pay_type":1,"inv_pre_pay_type":null},"rakuten_coupon_dtl":{"coupon_first_code":null,"coupon_first_name":null,"discount_first_value":0,"coupon_second_code":null,"coupon_second_name":null,"discount_second_value":0},"vendor_detail":{"rsv_member":"3","rsv_member_advance":null,"rsv_member_local":"3","rsv_pay_bank":"0","rsv_pay_card_advance":0,"rsv_pay_card_local":1,"rsv_pay_debitcard":1,"rsv_pay_code":1,"rsv_pay_emoney":0,"rsv_pay_giftcard":0,"rsv_pay_store":0,"rsv_pay_cash":1,"rsv_card_preregister":0,"rsv_card_list_advance":{"visa":1,"master":1,"jcb":1,"diners":1,"amex":1,"discover":0,"union_pay":0},"rsv_card_list_local":{"visa":1,"master":1,"jcb":0,"diners":0,"amex":0},"rsv_code_list":{"paypay":1,"line_pay":0},"rsv_emoney_list":{"apple_pay":0},"rsv_giftcard_list":{"jtb_travel_gift":0},"rsv_pay_card":"1","rsv_card_list":{"visa":"1","master":"1","jcb":"1","diners":"1","amex":"1"},"rsv_note":null,"rsv_card_note_advance_pc":"","rsv_card_note_advance_sp":"","rsv_card_note_local_pc":"","rsv_card_note_local_sp":"","rsv_code_note_pc":"\u4f1a\u54e1\u767b\u9332\u5fc5\u9808","rsv_code_note_sp":"\u4f1a\u54e1\u767b\u9332\u5fc5\u9808","rsv_bank_note_pc":"","rsv_bank_note_sp":"","rsv_payment_note_pc":"","rsv_payment_note_sp":"","rsv_transition_payment_caution_note_pc":"","rsv_transition_payment_caution_note_sp":"","rsv_transition_note_arr_sp":[],"rsv_transition_payment_title":"\u30b5\u30a4\u30c8\u79fb\u52d5\u5f8c\u306e\u78ba\u8a8d","rsv_transition_payment_price_detail_title":"\u30b5\u30a4\u30c8\u79fb\u52d5\u5f8c\u306e\u6ce8\u610f","rsv_transition_caution_note_arr_pc":["\u79fb\u52d5\u5f8c\u306e\u4e88\u7d04\u30b5\u30a4\u30c8\u3067\u3001\u5546\u54c1\u30fb\u4e88\u7d04\u5185\u5bb9\u306b\u3064\u3044\u3066\u9593\u9055\u3044\u304c\u306a\u3044\u304b<strong>\u5fc5\u305a\u518d\u78ba\u8a8d<\/strong>\u3057\u3066\u304f\u3060\u3055\u3044\u3002"],"rsv_transition_caution_note_arr_sp":["\u79fb\u52d5\u5f8c\u306e\u4e88\u7d04\u30b5\u30a4\u30c8\u3067\u3001\u5546\u54c1\u30fb\u4e88\u7d04\u5185\u5bb9\u306b\u3064\u3044\u3066\u9593\u9055\u3044\u304c\u306a\u3044\u304b<strong>\u5fc5\u305a\u518d\u78ba\u8a8d<\/strong>\u3057\u3066\u304f\u3060\u3055\u3044\u3002"]},"point_list":{"point_info":[{"name":"PayPay\u30dd\u30a4\u30f3\u30c8","unit":"\u30dd\u30a4\u30f3\u30c8","rate_min":"1","rate_max":"1","tax":"1","logo_url":"","point_min":633,"logo_width":"","logo_height":""}]},"hotel_price_min":35642,"hotel_price_max":64000,"free_cancellation_days":31,"free_cancellation_date":null,"free_cancellation_time":null,"non_refundable_days":7,"non_refundable_date":null,"non_refundable_time":null,"cancellation_policy_txt":"<p>\u3054\u4e88\u7d04\u5f8c\u306f\u4e0b\u8a18\u306e\u898f\u5b9a\u306b\u5f93\u3063\u3066\u30ad\u30e3\u30f3\u30bb\u30eb\u6599\u304c\u767a\u751f\u3057\u307e\u3059\u3002<\/p>\n\u30c1\u30a7\u30c3\u30af\u30a4\u30f3\u65e5 31\u65e5\u524d\u307e\u3067\uff1a\u7121\u6599\n\u30c1\u30a7\u30c3\u30af\u30a4\u30f3\u65e5 30\u65e5\u524d\uff5e\uff1a\u5bbf\u6cca\u6599\u91d1\u306e20%\n\u30c1\u30a7\u30c3\u30af\u30a4\u30f3\u65e5 14\u65e5\u524d\uff5e\uff1a\u5bbf\u6cca\u6599\u91d1\u306e50%\n\u30c1\u30a7\u30c3\u30af\u30a4\u30f3\u65e5 7\u65e5\u524d\uff5e\uff1a\u5bbf\u6cca\u6599\u91d1\u306e100%\n\u7121\u9023\u7d61\u30ad\u30e3\u30f3\u30bb\u30eb\uff1a\u5bbf\u6cca\u6599\u91d1\u306e100%\n<p>\u30ad\u30e3\u30f3\u30bb\u30eb\u898f\u5b9a\u306e\u8a73\u7d30\u306f\u4e88\u7d04\u30b5\u30a4\u30c8\u306b\u3066\u518d\u5ea6<strong>\u5fc5\u305a<\/strong>\u3054\u78ba\u8a8d\u304f\u3060\u3055\u3044\u3002<\/p>","cancellation_data_type":1,"cancellation_kwd_type":null,"chkin_from_full":"16:00","chkin_till_full":"19:00","chkout_before_full":"10:00","image_info":[{"category":"plan","count":0,"url":null,"small_url":null,"caption":null},{"category":"room","count":2,"url":"https:\/\/www.img-ikyu.com\/contents\/common\/image\/acc1\/00906261\/1\/xl\/14005186.jpg","small_url":"https:\/\/www.img-ikyu.com\/contents\/common\/image\/acc1\/00906261\/1\/md\/14005186.jpg?auto=compress,format&lossless=0&fit=crop&w=130&h=100","caption":"\u5404\u68df\u306e2F\u30ec\u30a4\u30a2\u30a6\u30c8\u3067\u3059\u3002"},{"category":"meal","count":0,"url":null,"small_url":null,"caption":null}],"cancellation_status":"\u30ad\u30e3\u30f3\u30bb\u30eb\u7121\u6599(\u671f\u9650\u3042\u308a)","chiiki_kanko_coupon_data_arr":null,"chiiki_kanko_coupon_block_text":null,"area_info":{"dist_id":5,"coty_id":84}},{"hotel_id":41573,"hotel_name":"\uff2b\u2019\uff53\u3000\uff36\uff49\uff4c\uff4c\uff41\uff47\uff45\u3000\uff2b\uff41\uff52\uff55\uff49\uff5a\uff41\uff57\uff41","phone":"0267-31-0312","plan_id":508041343,"plan_code":"4ksvllg|4ksvllg|0_0","plan_name":"\u3010\u7981\u7159\u3011\u5bb6\u65cf\u30fb\u89aa\u5b50\u3067\u4f53\u9a13\u3059\u308b\u8efd\u4e95\u6ca2\uff14\u4eba\u90e8\u5c4b\u30e1\u30be\u30cd\u30c3\u30c8","room_id":315945902,"room_code":"4ksvllg","room_name":"\u30c4\u30a4\u30f3 \/ \u3010\u7981\u7159\u3011\u5bb6\u65cf\u30fb\u89aa\u5b50\u3067\u4f53\u9a13\u3059\u308b\u8efd\u4e95\u6ca2\uff14\u4eba\u90e8\u5c4b\u30e1\u30be\u30cd\u30c3\u30c8","room_type_name":"\u30c4\u30a4\u30f3","room_org_name":"\u3010\u7981\u7159\u3011\u5bb6\u65cf\u30fb\u89aa\u5b50\u3067\u4f53\u9a13\u3059\u308b\u8efd\u4e95\u6ca2\uff14\u4eba\u90e8\u5c4b\u30e1\u30be\u30cd\u30c3\u30c8","room_size":null,"room_size_omit":null,"room_size_dtl":null,"appeal_text":"\u30c1\u30a7\u30c3\u30af\u30a4\u30f3\u304c\u4e88\u5b9a\u6642\u523b\u3092\u904e\u304e\u308b\u5834\u5408\u306f\u5fc5\u305a\u3054\u9023\u7d61\u4e0b\u3055\u3044\u3002\uff0c\u306b\u304e\u3084\u304b\u306a\u304a\u5b50\u69d8\u3001\u4e73\u5e7c\u5150\u306f\u3054\u76f8\u8ac7\u4e0b\u3055\u3044(\u304a\u5b50\u69d8\u306e\u6dfb\u3044\u5bdd\u306f10\u6b73\u672a\u6e80\u30d9\u30c3\u30c92\u3064\u306b\u5bfe\u30571\u540d\u307e\u3067)\u3002\uff0c\u30da\u30c3\u30c8\u4e0d\u53ef\uff0c\u30ac\u30b9\u30b3\u30f3\u30ed\u306e\u6301\u8fbc\u307f\u4e0d\u53ef\u3010\u4f7f\u2026","room_type":2,"smoking":1,"pln_flgs_arr":["10002","10101","30001","30001","30003","30010","30017","30018","30025","30032","30063","30064","30801","30901"],"agent_id":10176,"agent_logo":"https:\/\/www.tour.ne.jp\/element\/j_hotel\/shared\/images\/ic_agt_10176.gif","agent_name":"\u697d\u5929\u30c8\u30e9\u30d9\u30eb","is_inaccurate_price_agent":false,"accept_type":null,"pay_type":2,"pay_cash_local":1,"brand_id":173,"bf_stat":1,"dinner_stat":1,"lunch_stat":1,"unit_price":[[32000,0,0,0,0,0,0]],"unit_price_orig":[[32000,0,0,0,0,0,0]],"total_price_before":64000,"total_price_orig":64000,"total_price":64000,"discount_value":0,"discount":0,"stock_stat":5,"stock":2,"stock_up_time":"1\u65e5\u524d","up_date_interval":99860,"vacancy_checked":2,"realtime":"f","url_plan":"https:\/\/www.tour.ne.jp\/j_hotel\/agt_link\/?hotel_id=41573&plan_id=508041343&room_id=315945902&plan_code=4ksvllg|4ksvllg|0_0&room_code=4ksvllg&agent_id=10176&stay=1&adult=2&room=1&price_before=64000&price=64000&price_orig=64000&plan_url=&pay_type=2&cash_local=1&dsp_group=1&call=3&display_rank=1_4_1&goto_type=0&gl=0","agent_url_pc":null,"agent_url_sp":null,"coupon_key":null,"coupon_code":null,"group_sort":4,"group_plan_sort":1,"group_plan_count":1,"goto_type":0,"goto_price":{"payment":64000,"discount":0,"coupon":0,"discount_limit":0,"coupon_limit":0},"goto_end_date":"20230630","goto_out_of_term":2,"goto_login":1,"goto_coupon_type":1,"goto_nationwide_data_arr":[{"campaign_code":"174","campaign_name":"\u4fe1\u5dde\u5272SPECIAL","campaign_dp_ymd_end":"20230630","coupon_list":[{"agent_id":"10176","agent_name":"\u697d\u5929\u30c8\u30e9\u30d9\u30eb","coupon_no":"0","coupon_name":"","url":""}]}],"goto_block_text":null,"invoice":{"inv_dsp_type":1,"inv_on_pay_type":1,"inv_pre_pay_type":1},"rakuten_coupon_dtl":{"coupon_first_code":null,"coupon_first_name":null,"discount_first_value":0,"coupon_second_code":null,"coupon_second_name":null,"discount_second_value":0},"vendor_detail":{"rsv_member":"2","rsv_member_advance":"1","rsv_member_local":"2","rsv_pay_bank":"0","rsv_pay_card_advance":1,"rsv_pay_card_local":1,"rsv_pay_debitcard":1,"rsv_pay_code":0,"rsv_pay_emoney":0,"rsv_pay_giftcard":0,"rsv_pay_store":0,"rsv_pay_cash":1,"rsv_card_preregister":0,"rsv_card_list_advance":{"visa":1,"master":1,"jcb":1,"diners":1,"amex":1,"discover":0,"union_pay":0},"rsv_card_list_local":{"visa":1,"master":1,"jcb":0,"diners":0,"amex":0},"rsv_code_list":{"paypay":0,"line_pay":0},"rsv_emoney_list":{"apple_pay":0},"rsv_giftcard_list":{"jtb_travel_gift":0},"rsv_pay_card":"1","rsv_card_list":{"visa":"1","master":"1","jcb":"1","diners":"1","amex":"1"},"rsv_note":null,"rsv_card_note_advance_pc":"","rsv_card_note_advance_sp":"","rsv_card_note_local_pc":"","rsv_card_note_local_sp":"","rsv_code_note_pc":"","rsv_code_note_sp":"","rsv_bank_note_pc":"","rsv_bank_note_sp":"","rsv_payment_note_pc":"","rsv_payment_note_sp":"","rsv_transition_payment_caution_note_pc":"\u697d\u5929\u30c8\u30e9\u30d9\u30eb\u79fb\u52d5\u5f8c\u3001<strong>1\u6cca1\u540d\u3042\u305f\u308a\u306e\u6d88\u8cbb\u7a0e\u8fbc<\/strong>\u306e\u6599\u91d1\u304c\u8868\u793a\u3055\u308c\u307e\u3059\u304c\u3001\u4e88\u7d04\u6642\u306b\u4e0a\u8a18\u5408\u8a08\u6599\u91d1\u3067\u8868\u793a\u3055\u308c\u307e\u3059\u3002","rsv_transition_payment_caution_note_sp":"\u697d\u5929\u30c8\u30e9\u30d9\u30eb\u79fb\u52d5\u5f8c\u3001<strong>1\u6cca1\u540d\u3042\u305f\u308a\u306e\u6d88\u8cbb\u7a0e\u8fbc<\/strong>\u306e\u6599\u91d1\u304c\u8868\u793a\u3055\u308c\u307e\u3059\u304c\u3001\u4e88\u7d04\u6642\u306b\u4e0a\u8a18\u5408\u8a08\u6599\u91d1\u3067\u8868\u793a\u3055\u308c\u307e\u3059\u3002","rsv_transition_note_arr_sp":[],"rsv_transition_payment_title":"\u30b5\u30a4\u30c8\u79fb\u52d5\u5f8c\u306e<strong>\u6ce8\u610f<\/strong>","rsv_transition_payment_price_detail_title":"\u30b5\u30a4\u30c8\u79fb\u52d5\u5f8c\u306e\u6ce8\u610f","rsv_transition_caution_note_arr_pc":["\u697d\u5929\u30c8\u30e9\u30d9\u30eb\u79fb\u52d5\u5f8c\u3001<strong>1\u6cca1\u540d\u3042\u305f\u308a\u306e\u6d88\u8cbb\u7a0e\u8fbc<\/strong>\u306e\u6599\u91d1\u304c\u8868\u793a\u3055\u308c\u307e\u3059\u304c\u3001\u4e88\u7d04\u6642\u306b\u4e0a\u8a18\u5408\u8a08\u6599\u91d1\u3067\u8868\u793a\u3055\u308c\u307e\u3059\u3002","\u79fb\u52d5\u5f8c\u306e\u4e88\u7d04\u30b5\u30a4\u30c8\u3067\u3001\u5546\u54c1\u30fb\u4e88\u7d04\u5185\u5bb9\u306b\u3064\u3044\u3066\u9593\u9055\u3044\u304c\u306a\u3044\u304b<strong>\u5fc5\u305a\u518d\u78ba\u8a8d<\/strong>\u3057\u3066\u304f\u3060\u3055\u3044\u3002"],"rsv_transition_caution_note_arr_sp":["\u697d\u5929\u30c8\u30e9\u30d9\u30eb\u79fb\u52d5\u5f8c\u3001<strong>1\u6cca1\u540d\u3042\u305f\u308a\u306e\u6d88\u8cbb\u7a0e\u8fbc<\/strong>\u306e\u6599\u91d1\u304c\u8868\u793a\u3055\u308c\u307e\u3059\u304c\u3001\u4e88\u7d04\u6642\u306b\u4e0a\u8a18\u5408\u8a08\u6599\u91d1\u3067\u8868\u793a\u3055\u308c\u307e\u3059\u3002","\u79fb\u52d5\u5f8c\u306e\u4e88\u7d04\u30b5\u30a4\u30c8\u3067\u3001\u5546\u54c1\u30fb\u4e88\u7d04\u5185\u5bb9\u306b\u3064\u3044\u3066\u9593\u9055\u3044\u304c\u306a\u3044\u304b<strong>\u5fc5\u305a\u518d\u78ba\u8a8d<\/strong>\u3057\u3066\u304f\u3060\u3055\u3044\u3002"]},"point_list":{"point_info":[{"name":"\u697d\u5929\u30dd\u30a4\u30f3\u30c8","unit":"\u30dd\u30a4\u30f3\u30c8","rate_min":"1","rate_max":"10","tax":"0","logo_url":"","point_min":592,"logo_width":"","logo_height":""}]},"hotel_price_min":35642,"hotel_price_max":64000,"free_cancellation_days":15,"free_cancellation_date":null,"free_cancellation_time":"23:59","non_refundable_days":0,"non_refundable_date":null,"non_refundable_time":"00:00","cancellation_policy_txt":"<p>\u3054\u4e88\u7d04\u5f8c\u306f\u4e0b\u8a18\u306e\u898f\u5b9a\u306b\u5f93\u3063\u3066\u30ad\u30e3\u30f3\u30bb\u30eb\u6599\u304c\u767a\u751f\u3057\u307e\u3059\u3002<\/p>\n14\u65e5\u524d\u304b\u3089\uff1a\u5bbf\u6cca\u6599\u91d1\u306e20\uff05\n7\u65e5\u524d\u304b\u3089\uff1a\u5bbf\u6cca\u6599\u91d1\u306e30\uff05\n\u524d\u65e5\uff1a\u5bbf\u6cca\u6599\u91d1\u306e50\uff05\n\u5f53\u65e5\uff1a\u5bbf\u6cca\u6599\u91d1\u306e100\uff05\n\u9023\u7d61\u306a\u3057\u306e\u4e0d\u6cca\/\u4e0d\u7740\uff1a\u5bbf\u6cca\u6599\u91d1\u306e100\uff05\n<p>\u30ad\u30e3\u30f3\u30bb\u30eb\u898f\u5b9a\u306e\u8a73\u7d30\u306f\u4e88\u7d04\u30b5\u30a4\u30c8\u306b\u3066\u518d\u5ea6<strong>\u5fc5\u305a<\/strong>\u3054\u78ba\u8a8d\u304f\u3060\u3055\u3044\u3002<\/p>","cancellation_data_type":1,"cancellation_kwd_type":null,"chkin_from_full":null,"chkin_till_full":null,"chkout_before_full":null,"image_info":[{"category":"plan","count":0,"url":null,"small_url":null,"caption":null},{"category":"room","count":1,"url":"https:\/\/img.travel.rakuten.co.jp\/share\/image_up\/160842\/LARGE\/f20e1200ed09aec935ebfb8591e600add3392341.47.1.26.2.jpg","small_url":"https:\/\/img.travel.rakuten.co.jp\/share\/image_up\/160842\/LARGE\/f20e1200ed09aec935ebfb8591e600add3392341.47.1.26.2.jpg","caption":null},{"category":"meal","count":0,"url":null,"small_url":null,"caption":null}],"cancellation_status":"\u30ad\u30e3\u30f3\u30bb\u30eb\u7121\u6599(\u671f\u9650\u3042\u308a)","chiiki_kanko_coupon_data_arr":null,"chiiki_kanko_coupon_block_text":null,"area_info":{"dist_id":5,"coty_id":84}}],"room_type_induction":false,"kwd_except_induction":false,"app_goto_modal_text":"","result_cd":0},"area_info":{"count":1,"coty_name":"\u9577\u91ce\u770c","area_name":"\u8efd\u4e95\u6ca2","dist_id":"5","coty_id":"84","city_id":"10132","area_id":"1073"},"calendar_info":[],"month_exists":[],"calender_visible":false,"more_nights_plan_list":[],"dp_m":null,"ESCAPE_REQ":{"dp_ym":null,"dp_m":null,"dp_d":null,"offset":null,"is_pastday":null,"dist1":null,"coty1":null,"city1":null,"area1":null,"kwd":null,"multiple_dist1":null,"multiple_coty1":null,"multiple_city1":null,"multiple_area1":null,"multiple_area":null,"kwd_hotel":null,"kwd_plan":null,"kwd_except":null,"kwd_except_hotel":null,"kwd_except_plan":null,"kwd_mode":null,"kwd_type":"2","kwd_except_type":"2","dest_kwd":null,"dest_kwd_type":1,"dest_set1":null,"dest_set2":null,"dest_set3":null,"dest_name1":null,"dest_name2":null,"dest_name3":null,"sch":null,"dp_ymd":null,"stay":1,"adult":2,"child1":0,"child2":0,"child3":0,"child4":0,"child5":0,"child6":0,"room":1,"mny_sm":null,"mny_bg":null,"roomtype":null,"roomtype_map":null,"smoking":null,"meal":null,"mealtype_map":null,"hotel_type":null,"grade":null,"review_pt":null,"hotel_rank":null,"h-net":null,"h-smokeout":null,"h-open_spa_room":null,"h-room_meal_plan":null,"h-connecting_room":null,"h-spa":null,"h-big_bath":null,"h-open_spa":null,"h-reserved_bath":null,"h-fontal":null,"h-vistaed_bath":null,"h-mixed_bath":null,"h-nigori_spa":null,"h-sauna":null,"h-jacuzzi":null,"h-other_lowtemp":null,"h-bedrock_bath":null,"h-station_5m":null,"h-parking":null,"h-shop":null,"h-banquet_room":null,"h-business_room":null,"h-pool":null,"h-gym":null,"h-ping_pong":null,"h-bar_lounge":null,"h-transportation_service":null,"h-limousine":null,"h-pet":null,"h-room_service":null,"h-laundry_service":null,"h-esthetic_clinic":null,"h-massage":null,"h-ski_rental":null,"h-board_rental":null,"h-pc_rental":null,"h-copier":null,"h-fax":null,"h-wheelchair_accept":null,"h-wheelchair_rental":null,"h-barrier_free_toilet":null,"h-english":null,"h-chinese":null,"h-korean":null,"agent_id":null,"ctl_type":null,"p-smokeout":null,"p-smoking":null,"p-open_spa_room":null,"p-spa_room":null,"p-net":null,"p-sea_view":null,"p-night_view":null,"p-room_meal_plan":null,"p-dinner_viking":null,"p-late_checkout":null,"p-early_checkin":null,"p-credit":null,"p-long_stay":null,"p-family":null,"p-couple":null,"p-female":null,"p-anniversary":null,"p-quo":null,"p-onsite_payment":null,"p-pre_payment":null,"p-stay24h":null,"p-business":null,"p-discount_early":null,"p-discount_just_before":null,"p-wakeari":null,"p-esthetic":null,"p-point_rakuten":null,"p-point_ikkyu":null,"p-point_ponta":null,"p-point_jtb":null,"p-point_trip":null,"p-point_gv":null,"p-point_br":null,"p-credit_onsite":null,"p-student":null,"p-member_reg":null,"p-bf_viking":null,"p-bath_toilet_separate":null,"p-bath_toilet_attached":null,"p-cancel_free":null,"p-wifi":null,"p-point_t_point":null,"p-child_welcome":null,"p-pet":null,"p-barrier_free_toilet":null,"p-telework":null,"p-goto":null,"p-invoice":null,"p-ticket":null,"p-ticket_expo2025":null,"hotel_group":null,"x1":0,"y1":0,"x2":0,"y2":0,"x":0,"y":0,"r":0,"longitude":null,"latitude":null,"radius":null,"landmark":null,"spot_type":null,"spot_id":null,"real":null,"reduce_flag":1,"dsp_group":"1","dsp_sort":2,"dsp_type":null,"pg":1,"special":null,"add_limit":null,"custom_url":null,"api_model":null,"api_agent_id":null,"page":null,"count_type":null,"refpage":null,"onsen_id":null,"month":null,"hotel_id":"41573","rank":"10","dsp_knd":"2","key_hotel":null,"sitetype":"0","map_page":0,"more_nights_plan":null,"more_nights_plan_default_ymd":null,"gl":0,"ext_name":null},"nolink_photo_agent":[10322],"nolink_review_agent":[10322],"canonical_list_spot":{"spot_1000_127009":"\/j_hotel\/special\/tdr\/","spot_1000_127010":"\/j_hotel\/special\/tdr\/"},"display_f":"pc","is_sp":false,"chk_condition":0}
検索中
K’s Village Karuizawaの最安値
1部屋1泊あたりの宿泊料金 月別最安値
5月~4月 K’s Village Karuizawaの月別最安値
大人2名 / 1泊の料金(諸税込)
| 2026年5月 |
35,642円
|
| 2026年6月 |
35,642円
|
| 2026年7月 |
35,642円
|
| 2026年8月 |
39,602円
|
| 2026年9月 |
35,642円
|
| 2026年10月 |
35,642円
|
| 2026年11月 |
34,000円
|
| 2026年12月 |
34,000円
|
| 2027年1月 |
34,000円
|
| 2027年2月 |
36,000円
|
| 2027年3月 |
36,000円
|
| 2027年4月 |
-
|
-
-
-
-
-
-
-
-
-
-
-
-
5月の日別最安値
大人2名 / 1泊の料金(諸税込)
| 5月3日(日) |
50,000円
|
| 5月4日(月) |
-
|
| 5月5日(火) |
42,572円
|
| 5月6日(水) |
35,642円
|
| 5月7日(木) |
35,642円
|
| 5月8日(金) |
35,642円
|
| 5月9日(土) |
39,602円
|
| 5月10日(日) |
35,642円
|
| 5月11日(月) |
35,642円
|
| 5月12日(火) |
35,642円
|
| 5月13日(水) |
35,642円
|
| 5月14日(木) |
35,642円
|
| 5月15日(金) |
35,642円
|
| 5月16日(土) |
39,602円
|
| 5月17日(日) |
35,642円
|
| 5月18日(月) |
35,642円
|
| 5月19日(火) |
35,642円
|
| 5月20日(水) |
35,642円
|
| 5月21日(木) |
35,642円
|
| 5月22日(金) |
35,642円
|
| 5月23日(土) |
39,602円
|
| 5月24日(日) |
35,642円
|
| 5月25日(月) |
35,642円
|
| 5月26日(火) |
35,642円
|
| 5月27日(水) |
35,642円
|
| 5月28日(木) |
35,642円
|
| 5月29日(金) |
35,642円
|
| 5月30日(土) |
39,602円
|
| 5月31日(日) |
35,642円
|
6月の日別最安値
大人2名 / 1泊の料金(諸税込)
| 6月1日(月) |
35,642円
|
| 6月2日(火) |
35,642円
|
| 6月3日(水) |
35,642円
|
| 6月4日(木) |
35,642円
|
| 6月5日(金) |
35,642円
|
| 6月6日(土) |
39,602円
|
| 6月7日(日) |
35,642円
|
| 6月8日(月) |
35,642円
|
| 6月9日(火) |
35,642円
|
| 6月10日(水) |
35,642円
|
| 6月11日(木) |
35,642円
|
| 6月12日(金) |
35,642円
|
| 6月13日(土) |
39,602円
|
| 6月14日(日) |
35,642円
|
| 6月15日(月) |
35,642円
|
| 6月16日(火) |
35,642円
|
| 6月17日(水) |
35,642円
|
| 6月18日(木) |
35,642円
|
| 6月19日(金) |
35,642円
|
| 6月20日(土) |
39,602円
|
| 6月21日(日) |
35,642円
|
| 6月22日(月) |
35,642円
|
| 6月23日(火) |
35,642円
|
| 6月24日(水) |
35,642円
|
| 6月25日(木) |
35,642円
|
| 6月26日(金) |
35,642円
|
| 6月27日(土) |
39,602円
|
| 6月28日(日) |
35,642円
|
| 6月29日(月) |
35,642円
|
| 6月30日(火) |
35,642円
|
7月の日別最安値
大人2名 / 1泊の料金(諸税込)
| 7月1日(水) |
35,642円
|
| 7月2日(木) |
35,642円
|
| 7月3日(金) |
35,642円
|
| 7月4日(土) |
39,602円
|
| 7月5日(日) |
35,642円
|
| 7月6日(月) |
35,642円
|
| 7月7日(火) |
35,642円
|
| 7月8日(水) |
35,642円
|
| 7月9日(木) |
35,642円
|
| 7月10日(金) |
35,642円
|
| 7月11日(土) |
39,602円
|
| 7月12日(日) |
35,642円
|
| 7月13日(月) |
35,642円
|
| 7月14日(火) |
35,642円
|
| 7月15日(水) |
35,642円
|
| 7月16日(木) |
35,642円
|
| 7月17日(金) |
35,642円
|
| 7月18日(土) |
-
|
| 7月19日(日) |
-
|
| 7月20日(月) |
39,602円
|
| 7月21日(火) |
39,602円
|
| 7月22日(水) |
39,602円
|
| 7月23日(木) |
39,602円
|
| 7月24日(金) |
39,602円
|
| 7月25日(土) |
46,532円
|
| 7月26日(日) |
42,572円
|
| 7月27日(月) |
42,572円
|
| 7月28日(火) |
42,572円
|
| 7月29日(水) |
42,572円
|
| 7月30日(木) |
42,572円
|
| 7月31日(金) |
42,572円
|
8月の日別最安値
大人2名 / 1泊の料金(諸税込)
| 8月1日(土) |
46,532円
|
| 8月2日(日) |
42,572円
|
| 8月3日(月) |
42,572円
|
| 8月4日(火) |
42,572円
|
| 8月5日(水) |
42,572円
|
| 8月6日(木) |
42,572円
|
| 8月7日(金) |
42,572円
|
| 8月8日(土) |
-
|
| 8月9日(日) |
-
|
| 8月10日(月) |
-
|
| 8月11日(火) |
-
|
| 8月12日(水) |
-
|
| 8月13日(木) |
-
|
| 8月14日(金) |
-
|
| 8月15日(土) |
-
|
| 8月16日(日) |
39,602円
|
| 8月17日(月) |
39,602円
|
| 8月18日(火) |
39,602円
|
| 8月19日(水) |
39,602円
|
| 8月20日(木) |
39,602円
|
| 8月21日(金) |
39,602円
|
| 8月22日(土) |
46,532円
|
| 8月23日(日) |
39,602円
|
| 8月24日(月) |
39,602円
|
| 8月25日(火) |
39,602円
|
| 8月26日(水) |
39,602円
|
| 8月27日(木) |
39,602円
|
| 8月28日(金) |
39,602円
|
| 8月29日(土) |
46,532円
|
| 8月30日(日) |
39,602円
|
| 8月31日(月) |
39,602円
|
9月の日別最安値
大人2名 / 1泊の料金(諸税込)
| 9月1日(火) |
35,642円
|
| 9月2日(水) |
35,642円
|
| 9月3日(木) |
35,642円
|
| 9月4日(金) |
35,642円
|
| 9月5日(土) |
39,602円
|
| 9月6日(日) |
35,642円
|
| 9月7日(月) |
35,642円
|
| 9月8日(火) |
35,642円
|
| 9月9日(水) |
35,642円
|
| 9月10日(木) |
35,642円
|
| 9月11日(金) |
35,642円
|
| 9月12日(土) |
39,602円
|
| 9月13日(日) |
35,642円
|
| 9月14日(月) |
35,642円
|
| 9月15日(火) |
35,642円
|
| 9月16日(水) |
35,642円
|
| 9月17日(木) |
35,642円
|
| 9月18日(金) |
35,642円
|
| 9月19日(土) |
-
|
| 9月20日(日) |
-
|
| 9月21日(月) |
-
|
| 9月22日(火) |
-
|
| 9月23日(水) |
35,642円
|
| 9月24日(木) |
35,642円
|
| 9月25日(金) |
35,642円
|
| 9月26日(土) |
39,602円
|
| 9月27日(日) |
35,642円
|
| 9月28日(月) |
35,642円
|
| 9月29日(火) |
35,642円
|
| 9月30日(水) |
35,642円
|
10月の日別最安値
大人2名 / 1泊の料金(諸税込)
| 10月1日(木) |
35,642円
|
| 10月2日(金) |
35,642円
|
| 10月3日(土) |
39,602円
|
| 10月4日(日) |
35,642円
|
| 10月5日(月) |
35,642円
|
| 10月6日(火) |
35,642円
|
| 10月7日(水) |
35,642円
|
| 10月8日(木) |
35,642円
|
| 10月9日(金) |
35,642円
|
| 10月10日(土) |
-
|
| 10月11日(日) |
-
|
| 10月12日(月) |
35,642円
|
| 10月13日(火) |
35,642円
|
| 10月14日(水) |
35,642円
|
| 10月15日(木) |
35,642円
|
| 10月16日(金) |
35,642円
|
| 10月17日(土) |
39,602円
|
| 10月18日(日) |
35,642円
|
| 10月19日(月) |
35,642円
|
| 10月20日(火) |
35,642円
|
| 10月21日(水) |
35,642円
|
| 10月22日(木) |
35,642円
|
| 10月23日(金) |
35,642円
|
| 10月24日(土) |
39,602円
|
| 10月25日(日) |
35,642円
|
| 10月26日(月) |
35,642円
|
| 10月27日(火) |
35,642円
|
| 10月28日(水) |
35,642円
|
| 10月29日(木) |
36,000円
|
| 10月30日(金) |
36,000円
|
| 10月31日(土) |
40,000円
|
11月の日別最安値
大人2名 / 1泊の料金(諸税込)
| 11月1日(日) |
36,000円
|
| 11月2日(月) |
36,000円
|
| 11月3日(火) |
36,000円
|
| 11月4日(水) |
36,000円
|
| 11月5日(木) |
36,000円
|
| 11月6日(金) |
36,000円
|
| 11月7日(土) |
40,000円
|
| 11月8日(日) |
36,000円
|
| 11月9日(月) |
36,000円
|
| 11月10日(火) |
36,000円
|
| 11月11日(水) |
36,000円
|
| 11月12日(木) |
36,000円
|
| 11月13日(金) |
36,000円
|
| 11月14日(土) |
40,000円
|
| 11月15日(日) |
36,000円
|
| 11月16日(月) |
36,000円
|
| 11月17日(火) |
36,000円
|
| 11月18日(水) |
36,000円
|
| 11月19日(木) |
36,000円
|
| 11月20日(金) |
36,000円
|
| 11月21日(土) |
-
|
| 11月22日(日) |
-
|
| 11月23日(月) |
34,000円
|
| 11月24日(火) |
34,000円
|
| 11月25日(水) |
34,000円
|
| 11月26日(木) |
34,000円
|
| 11月27日(金) |
34,000円
|
| 11月28日(土) |
40,000円
|
| 11月29日(日) |
34,000円
|
| 11月30日(月) |
34,000円
|
12月の日別最安値
大人2名 / 1泊の料金(諸税込)
| 12月1日(火) |
34,000円
|
| 12月2日(水) |
34,000円
|
| 12月3日(木) |
34,000円
|
| 12月4日(金) |
34,000円
|
| 12月5日(土) |
36,000円
|
| 12月6日(日) |
34,000円
|
| 12月7日(月) |
34,000円
|
| 12月8日(火) |
34,000円
|
| 12月9日(水) |
34,000円
|
| 12月10日(木) |
34,000円
|
| 12月11日(金) |
34,000円
|
| 12月12日(土) |
36,000円
|
| 12月13日(日) |
34,000円
|
| 12月14日(月) |
34,000円
|
| 12月15日(火) |
34,000円
|
| 12月16日(水) |
34,000円
|
| 12月17日(木) |
34,000円
|
| 12月18日(金) |
34,000円
|
| 12月19日(土) |
36,000円
|
| 12月20日(日) |
34,000円
|
| 12月21日(月) |
34,000円
|
| 12月22日(火) |
34,000円
|
| 12月23日(水) |
34,000円
|
| 12月24日(木) |
34,000円
|
| 12月25日(金) |
34,000円
|
| 12月26日(土) |
36,000円
|
| 12月27日(日) |
36,000円
|
| 12月28日(月) |
40,000円
|
| 12月29日(火) |
40,000円
|
| 12月30日(水) |
-
|
| 12月31日(木) |
-
|
1月の日別最安値
大人2名 / 1泊の料金(諸税込)
| 1月1日(金) |
-
|
| 1月2日(土) |
-
|
| 1月3日(日) |
43,000円
|
| 1月4日(月) |
34,000円
|
| 1月5日(火) |
34,000円
|
| 1月6日(水) |
34,000円
|
| 1月7日(木) |
34,000円
|
| 1月8日(金) |
34,000円
|
| 1月9日(土) |
36,000円
|
| 1月10日(日) |
36,000円
|
| 1月11日(月) |
57,000円
|
| 1月12日(火) |
57,000円
|
| 1月13日(水) |
57,000円
|
| 1月14日(木) |
57,000円
|
| 1月15日(金) |
57,000円
|
| 1月16日(土) |
36,000円
|
| 1月17日(日) |
57,000円
|
| 1月18日(月) |
57,000円
|
| 1月19日(火) |
57,000円
|
| 1月20日(水) |
57,000円
|
| 1月21日(木) |
57,000円
|
| 1月22日(金) |
57,000円
|
| 1月23日(土) |
36,000円
|
| 1月24日(日) |
57,000円
|
| 1月25日(月) |
57,000円
|
| 1月26日(火) |
57,000円
|
| 1月27日(水) |
57,000円
|
| 1月28日(木) |
57,000円
|
| 1月29日(金) |
57,000円
|
| 1月30日(土) |
36,000円
|
| 1月31日(日) |
57,000円
|
2月の日別最安値
大人2名 / 1泊の料金(諸税込)
| 2月1日(月) |
57,000円
|
| 2月2日(火) |
57,000円
|
| 2月3日(水) |
57,000円
|
| 2月4日(木) |
57,000円
|
| 2月5日(金) |
57,000円
|
| 2月6日(土) |
36,000円
|
| 2月7日(日) |
57,000円
|
| 2月8日(月) |
57,000円
|
| 2月9日(火) |
57,000円
|
| 2月10日(水) |
57,000円
|
| 2月11日(木) |
57,000円
|
| 2月12日(金) |
57,000円
|
| 2月13日(土) |
36,000円
|
| 2月14日(日) |
57,000円
|
| 2月15日(月) |
57,000円
|
| 2月16日(火) |
57,000円
|
| 2月17日(水) |
57,000円
|
| 2月18日(木) |
57,000円
|
| 2月19日(金) |
57,000円
|
| 2月20日(土) |
36,000円
|
| 2月21日(日) |
57,000円
|
| 2月22日(月) |
57,000円
|
| 2月23日(火) |
57,000円
|
| 2月24日(水) |
57,000円
|
| 2月25日(木) |
57,000円
|
| 2月26日(金) |
57,000円
|
| 2月27日(土) |
36,000円
|
| 2月28日(日) |
57,000円
|
3月の日別最安値
大人2名 / 1泊の料金(諸税込)
| 3月1日(月) |
57,000円
|
| 3月2日(火) |
57,000円
|
| 3月3日(水) |
57,000円
|
| 3月4日(木) |
57,000円
|
| 3月5日(金) |
57,000円
|
| 3月6日(土) |
36,000円
|
| 3月7日(日) |
57,000円
|
| 3月8日(月) |
57,000円
|
| 3月9日(火) |
57,000円
|
| 3月10日(水) |
57,000円
|
| 3月11日(木) |
57,000円
|
| 3月12日(金) |
57,000円
|
| 3月13日(土) |
36,000円
|
| 3月14日(日) |
57,000円
|
| 3月15日(月) |
57,000円
|
| 3月16日(火) |
57,000円
|
| 3月17日(水) |
57,000円
|
| 3月18日(木) |
57,000円
|
| 3月19日(金) |
57,000円
|
| 3月20日(土) |
-
|
| 3月21日(日) |
-
|
| 3月22日(月) |
57,000円
|
| 3月23日(火) |
57,000円
|
| 3月24日(水) |
57,000円
|
| 3月25日(木) |
57,000円
|
| 3月26日(金) |
57,000円
|
| 3月27日(土) |
36,000円
|
| 3月28日(日) |
57,000円
|
| 3月29日(月) |
57,000円
|
| 3月30日(火) |
57,000円
|
| 3月31日(水) |
57,000円
|
2026年5月~2027年4月の中で、K’s Village Karuizawaの最安値は34,000円(11月他)です。
5月2日時点
基本情報・アクセス
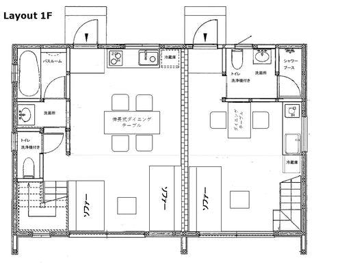
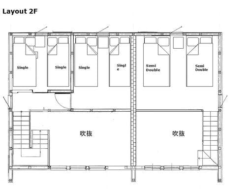
ゆったりとプライバシーの守れる広さで別荘気分を味わえるメゾネットタイプの宿です。
客室
写真提供:Yahoo!トラベル
写真提供:Yahoo!トラベル
写真提供:Yahoo!トラベル