-
ホテルランク 星5個中4個
-
価格帯
-
クチコミ評価
宿泊プラン・予約
人数 1部屋あたり
?- ?
予算 1部屋1泊あたり
?キーワード
?除外ワード
?食事条件
部屋タイプ
禁煙・喫煙
こだわり条件
?予約サイトで絞り込む
写真
基本情報・アクセス
-
住所〒103-0013 東京都中央区日本橋人形町 2-2-7
-
アクセス
- 最寄り駅・空港
- 東京メトロ日比谷線「人形町」駅から229m
- 東京メトロ半蔵門線「水天宮前」駅から270m
- 都営新宿線「浜町」駅から540m
- 最寄り駅・空港
-
駐車場不明
- 宿泊施設にご確認ください
-
送迎不明
- 宿泊施設にご確認ください
-
チェックイン (標準)15:00〜
-
チェックアウト (標準)10:00
-
Wi-FiWi-Fiあり (無料)
施設までのルート検索
- 移動方法:
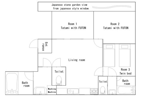
客室
アメニティ
- 石けん
- バスタオル&タオル
- 歯ブラシ/歯磨き粉
- スリッパ
- ドライヤー
- 食器セット
- 宿泊プランごとに設定がある場合は、そちらが優先されます
客室設備
- 冷蔵庫
- DVDプレーヤー
館内サービス
サービス
- 荷物預かり
対応言語
- 英語
- 韓国語
- 日本語
- スタッフは常駐でない場合があります。詳しくは宿泊施設にご確認ください
- ※商品内容は予約時に必ず再確認してください









































