検索中
宿泊プラン・予約
{"hotel_photo":{"photo_gallery_agent_id":"39979","photo_gallery_agent_name":"Yahoo!\u30c8\u30e9\u30d9\u30eb"},"plan_info":{"plan_count":3,"group_count":3,"plan_list":[{"hotel_id":48248,"hotel_name":"\u6d77\u3068\u5cf6\u306e\u96a0\u308c\u5bbf Archipelago TSUSHIMA -\u6ccaRutto","phone":"080-2976-4641","plan_id":1018176234,"plan_code":"11672287","plan_name":"\u3010\u76f4\u524d\u5272\u3011\uff1c\u7d20\u6cca\u307e\u308a\uff1e\u7d76\u666f\u3092\u671b\u3080\u4e00\u68df\u8cb8\u3057\u3000\u6700\u5b89\u502420\uff05OFF","room_id":721005485,"room_code":"10137853|11672287","room_name":"Archipelago TSUSHIMA \/ 92.72\u5e73\u7c73","room_type_name":"","room_org_name":"Archipelago TSUSHIMA","room_size":"92.72\u5e73\u7c73","room_size_omit":"92\u33a1","room_size_dtl":"92.72\u33a1","appeal_text":"\u76f4\u524d\u5272\u30d7\u30e9\u30f3\u6025\u306b\u3067\u304d\u305f\u304a\u4f11\u307f\u3084\u601d\u3044\u7acb\u3063\u305f\u65c5\u306b\u3082\u3074\u3063\u305f\u308a\u3002\u672c\u30d7\u30e9\u30f3\u306a\u3089\u3001\u76f4\u524d\u306e\u3054\u4e88\u7d04\u304c20\uff05OFF\u3067\u3054\u5229\u7528\u3044\u305f\u3060\u3051\u307e\u3059\u3002\u6d77\u3092\u773a\u3081\u306a\u304c\u3089\u3086\u3063\u305f\u308a\u904e\u3054\u3059\u3082\u826f\u3057\u3067\u3059\u3002\u3053\u306e\u6a5f\u4f1a\u306b\u305c\u3072\u304a\u5f97\u306b\u3054\u6ede\u5728\u304f\u3060\u3055\u2026","room_type":null,"smoking":1,"pln_flgs_arr":["10101","30001","30003","30004","30005","30018","30032","30034","30036","30047","30065","30801"],"agent_id":39979,"agent_logo":"https:\/\/www.tour.ne.jp\/element\/j_hotel\/shared\/images\/ic_agt_39979.gif","agent_name":"Yahoo!\u30c8\u30e9\u30d9\u30eb","is_inaccurate_price_agent":false,"accept_type":null,"pay_type":1,"pay_cash_local":0,"brand_id":null,"bf_stat":1,"dinner_stat":1,"lunch_stat":1,"unit_price":[[12420,0,0,0,0,0,0]],"unit_price_orig":[[13800,0,0,0,0,0,0]],"total_price_before":24840,"total_price_orig":27600,"total_price":24840,"discount_value":2760,"discount":0,"stock_stat":5,"stock":1,"stock_up_time":"1\u65e5\u524d","up_date_interval":140347,"vacancy_checked":2,"realtime":"f","url_plan":"https:\/\/www.tour.ne.jp\/j_hotel\/agt_link\/?hotel_id=48248&plan_id=1018176234&room_id=721005485&plan_code=11672287&room_code=10137853|11672287&agent_id=39979&stay=1&adult=2&room=1&price_before=24840&price=24840&price_orig=27600&discount_value=2760&plan_url=&pay_type=1&dsp_group=1&call=3&display_rank=1_1_1&goto_type=0&gl=0","agent_url_pc":null,"agent_url_sp":null,"coupon_key":null,"coupon_code":null,"group_sort":1,"group_plan_sort":1,"group_plan_count":1,"goto_type":0,"goto_price":{"payment":24840,"discount":0,"coupon":0,"discount_limit":0,"coupon_limit":0},"goto_end_date":"20230630","goto_out_of_term":2,"goto_login":2,"goto_coupon_type":3,"goto_nationwide_data_arr":[{"campaign_code":"191","campaign_name":"\u65b0\u3046\u3069\u3093\u770c\u6cca\u307e\u3063\u3066\u304b\u304c\u308f\u5272","campaign_dp_ymd_end":"20230630","coupon_list":[{"agent_id":"39979","agent_name":"Yahoo!\u30c8\u30e9\u30d9\u30eb","coupon_no":"0","coupon_name":"","url":""}]}],"goto_block_text":null,"invoice":{"inv_dsp_type":2,"inv_on_pay_type":null,"inv_pre_pay_type":2},"vendor_detail":{"rsv_member":"3","rsv_member_advance":"3","rsv_member_local":null,"rsv_pay_bank":"0","rsv_pay_card_advance":1,"rsv_pay_card_local":0,"rsv_pay_debitcard":1,"rsv_pay_code":1,"rsv_pay_emoney":0,"rsv_pay_giftcard":0,"rsv_pay_store":0,"rsv_pay_cash":0,"rsv_card_preregister":0,"rsv_card_list_advance":{"visa":1,"master":1,"jcb":1,"diners":1,"amex":1,"discover":0,"union_pay":0},"rsv_card_list_local":{"visa":0,"master":0,"jcb":0,"diners":0,"amex":0},"rsv_code_list":{"paypay":1,"line_pay":0},"rsv_emoney_list":{"apple_pay":0},"rsv_giftcard_list":{"jtb_travel_gift":0},"rsv_pay_card":"1","rsv_card_list":{"visa":"1","master":"1","jcb":"1","diners":"1","amex":"1"},"rsv_note":null,"rsv_card_note_advance_pc":"","rsv_card_note_advance_sp":"","rsv_card_note_local_pc":"","rsv_card_note_local_sp":"","rsv_code_note_pc":"\u4f1a\u54e1\u767b\u9332\u5fc5\u9808","rsv_code_note_sp":"\u4f1a\u54e1\u767b\u9332\u5fc5\u9808","rsv_bank_note_pc":"","rsv_bank_note_sp":"","rsv_payment_note_pc":"","rsv_payment_note_sp":"","rsv_transition_payment_caution_note_pc":"","rsv_transition_payment_caution_note_sp":"","rsv_transition_note_arr_sp":[],"rsv_transition_payment_title":"\u30b5\u30a4\u30c8\u79fb\u52d5\u5f8c\u306e\u78ba\u8a8d","rsv_transition_payment_price_detail_title":"\u30b5\u30a4\u30c8\u79fb\u52d5\u5f8c\u306e\u6ce8\u610f","rsv_transition_caution_note_arr_pc":["\u79fb\u52d5\u5f8c\u306e\u4e88\u7d04\u30b5\u30a4\u30c8\u3067\u3001\u5546\u54c1\u30fb\u4e88\u7d04\u5185\u5bb9\u306b\u3064\u3044\u3066\u9593\u9055\u3044\u304c\u306a\u3044\u304b<strong>\u5fc5\u305a\u518d\u78ba\u8a8d<\/strong>\u3057\u3066\u304f\u3060\u3055\u3044\u3002"],"rsv_transition_caution_note_arr_sp":["\u79fb\u52d5\u5f8c\u306e\u4e88\u7d04\u30b5\u30a4\u30c8\u3067\u3001\u5546\u54c1\u30fb\u4e88\u7d04\u5185\u5bb9\u306b\u3064\u3044\u3066\u9593\u9055\u3044\u304c\u306a\u3044\u304b<strong>\u5fc5\u305a\u518d\u78ba\u8a8d<\/strong>\u3057\u3066\u304f\u3060\u3055\u3044\u3002"]},"point_list":{"point_info":[{"name":"PayPay\u30dd\u30a4\u30f3\u30c8","unit":"\u30dd\u30a4\u30f3\u30c8","rate_min":"1","rate_max":"1","tax":"1","logo_url":"","point_min":248,"logo_width":"","logo_height":""}]},"hotel_price_min":24840,"hotel_price_max":31060,"free_cancellation_days":15,"free_cancellation_date":null,"free_cancellation_time":null,"non_refundable_days":3,"non_refundable_date":null,"non_refundable_time":null,"cancellation_policy_txt":"<p>\u3054\u4e88\u7d04\u5f8c\u306f\u4e0b\u8a18\u306e\u898f\u5b9a\u306b\u5f93\u3063\u3066\u30ad\u30e3\u30f3\u30bb\u30eb\u6599\u304c\u767a\u751f\u3057\u307e\u3059\u3002<\/p>\n\u30c1\u30a7\u30c3\u30af\u30a4\u30f3\u65e5 15\u65e5\u524d\u307e\u3067\uff1a\u7121\u6599\n\u30c1\u30a7\u30c3\u30af\u30a4\u30f3\u65e5 14\u65e5\u524d\uff5e\uff1a\u5bbf\u6cca\u6599\u91d1\u306e50%\n\u30c1\u30a7\u30c3\u30af\u30a4\u30f3\u65e5 7\u65e5\u524d\uff5e\uff1a\u5bbf\u6cca\u6599\u91d1\u306e80%\n\u30c1\u30a7\u30c3\u30af\u30a4\u30f3\u65e5 3\u65e5\u524d\uff5e\uff1a\u5bbf\u6cca\u6599\u91d1\u306e100%\n\u7121\u9023\u7d61\u30ad\u30e3\u30f3\u30bb\u30eb\uff1a\u5bbf\u6cca\u6599\u91d1\u306e100%\n<p>\u30ad\u30e3\u30f3\u30bb\u30eb\u898f\u5b9a\u306e\u8a73\u7d30\u306f\u4e88\u7d04\u30b5\u30a4\u30c8\u306b\u3066\u518d\u5ea6<strong>\u5fc5\u305a<\/strong>\u3054\u78ba\u8a8d\u304f\u3060\u3055\u3044\u3002<\/p>","cancellation_data_type":1,"cancellation_kwd_type":null,"chkin_from_full":"16:00","chkin_till_full":"18:30","chkout_before_full":"10:00","image_info":[{"category":"plan","count":0,"url":null,"small_url":null,"caption":null},{"category":"room","count":3,"url":"https:\/\/www.img-ikyu.com\/contents\/common\/image\/acc9\/00050789\/1\/xl\/11528996.jpg","small_url":"https:\/\/www.img-ikyu.com\/contents\/common\/image\/acc9\/00050789\/1\/md\/11528996.jpg?auto=compress,format&lossless=0&fit=crop&w=130&h=100","caption":null},{"category":"meal","count":0,"url":null,"small_url":null,"caption":null}],"cancellation_status":"\u30ad\u30e3\u30f3\u30bb\u30eb\u7121\u6599(\u671f\u9650\u3042\u308a)","chiiki_kanko_coupon_data_arr":null,"chiiki_kanko_coupon_block_text":null,"area_info":{"dist_id":8,"coty_id":133}},{"hotel_id":48248,"hotel_name":"\u6d77\u3068\u5cf6\u306e\u96a0\u308c\u5bbf Archipelago TSUSHIMA -\u6ccaRutto","phone":"080-2976-4641","plan_id":1018176237,"plan_code":"11680856","plan_name":"\u3010\u65e9\u671f\u527230\u3011\uff1c\u7d20\u6cca\u307e\u308a\uff1e\u65e9\u3081\u306e\u3054\u4e88\u7d04\u306710\uff05OFF\u304a\u5f97\u306b\u30b9\u30c6\u30a4","room_id":721005999,"room_code":"10137853|11680856","room_name":"Archipelago TSUSHIMA \/ 92.72\u5e73\u7c73","room_type_name":"","room_org_name":"Archipelago TSUSHIMA","room_size":"92.72\u5e73\u7c73","room_size_omit":"92\u33a1","room_size_dtl":"92.72\u33a1","appeal_text":"\u3010\u30d7\u30e9\u30f3\u5185\u5bb9\u301130\u65e5\u524d\u307e\u3067\u306e\u3054\u4e88\u7d04\u9650\u5b9a\u3067\u3001\u901a\u5e38\u6599\u91d1\u3088\u308a10\uff05\u304a\u5f97\u306a\u5bbf\u6cca\u30d7\u30e9\u30f3\u3067\u3059\u3002\u3054\u4e88\u5b9a\u304c\u304a\u6c7a\u307e\u308a\u3067\u3057\u305f\u3089\u304a\u65e9\u3081\u306e\u4e88\u7d04\u304c\u65ad\u7136\u304a\u5f97\uff01\u203b\u7d20\u6cca\u307e\u308a\u3001\u98df\u4e8b\u306a\u3057\uff08\u304a\u6301\u3061\u8fbc\u307f\u81ea\u7531\uff09\u203b\u4e88\u7d04\u6210\u7acb\u3057\u305f\u91d1\u984d\u304c\u5272\u2026","room_type":null,"smoking":1,"pln_flgs_arr":["10101","30001","30003","30004","30005","30018","30032","30034","30036","30047","30065","30801"],"agent_id":39979,"agent_logo":"https:\/\/www.tour.ne.jp\/element\/j_hotel\/shared\/images\/ic_agt_39979.gif","agent_name":"Yahoo!\u30c8\u30e9\u30d9\u30eb","is_inaccurate_price_agent":false,"accept_type":null,"pay_type":1,"pay_cash_local":0,"brand_id":null,"bf_stat":1,"dinner_stat":1,"lunch_stat":1,"unit_price":[[13975,0,0,0,0,0,0]],"unit_price_orig":[[15525,0,0,0,0,0,0]],"total_price_before":27950,"total_price_orig":31050,"total_price":27950,"discount_value":3100,"discount":0,"stock_stat":5,"stock":1,"stock_up_time":"1\u65e5\u524d","up_date_interval":140347,"vacancy_checked":2,"realtime":"f","url_plan":"https:\/\/www.tour.ne.jp\/j_hotel\/agt_link\/?hotel_id=48248&plan_id=1018176237&room_id=721005999&plan_code=11680856&room_code=10137853|11680856&agent_id=39979&stay=1&adult=2&room=1&price_before=27950&price=27950&price_orig=31050&discount_value=3100&plan_url=&pay_type=1&dsp_group=1&call=3&display_rank=1_2_1&goto_type=0&gl=0","agent_url_pc":null,"agent_url_sp":null,"coupon_key":null,"coupon_code":null,"group_sort":2,"group_plan_sort":1,"group_plan_count":1,"goto_type":0,"goto_price":{"payment":27950,"discount":0,"coupon":0,"discount_limit":0,"coupon_limit":0},"goto_end_date":"20230630","goto_out_of_term":2,"goto_login":2,"goto_coupon_type":3,"goto_nationwide_data_arr":[{"campaign_code":"191","campaign_name":"\u65b0\u3046\u3069\u3093\u770c\u6cca\u307e\u3063\u3066\u304b\u304c\u308f\u5272","campaign_dp_ymd_end":"20230630","coupon_list":[{"agent_id":"39979","agent_name":"Yahoo!\u30c8\u30e9\u30d9\u30eb","coupon_no":"0","coupon_name":"","url":""}]}],"goto_block_text":null,"invoice":{"inv_dsp_type":2,"inv_on_pay_type":null,"inv_pre_pay_type":2},"vendor_detail":{"rsv_member":"3","rsv_member_advance":"3","rsv_member_local":null,"rsv_pay_bank":"0","rsv_pay_card_advance":1,"rsv_pay_card_local":0,"rsv_pay_debitcard":1,"rsv_pay_code":1,"rsv_pay_emoney":0,"rsv_pay_giftcard":0,"rsv_pay_store":0,"rsv_pay_cash":0,"rsv_card_preregister":0,"rsv_card_list_advance":{"visa":1,"master":1,"jcb":1,"diners":1,"amex":1,"discover":0,"union_pay":0},"rsv_card_list_local":{"visa":0,"master":0,"jcb":0,"diners":0,"amex":0},"rsv_code_list":{"paypay":1,"line_pay":0},"rsv_emoney_list":{"apple_pay":0},"rsv_giftcard_list":{"jtb_travel_gift":0},"rsv_pay_card":"1","rsv_card_list":{"visa":"1","master":"1","jcb":"1","diners":"1","amex":"1"},"rsv_note":null,"rsv_card_note_advance_pc":"","rsv_card_note_advance_sp":"","rsv_card_note_local_pc":"","rsv_card_note_local_sp":"","rsv_code_note_pc":"\u4f1a\u54e1\u767b\u9332\u5fc5\u9808","rsv_code_note_sp":"\u4f1a\u54e1\u767b\u9332\u5fc5\u9808","rsv_bank_note_pc":"","rsv_bank_note_sp":"","rsv_payment_note_pc":"","rsv_payment_note_sp":"","rsv_transition_payment_caution_note_pc":"","rsv_transition_payment_caution_note_sp":"","rsv_transition_note_arr_sp":[],"rsv_transition_payment_title":"\u30b5\u30a4\u30c8\u79fb\u52d5\u5f8c\u306e\u78ba\u8a8d","rsv_transition_payment_price_detail_title":"\u30b5\u30a4\u30c8\u79fb\u52d5\u5f8c\u306e\u6ce8\u610f","rsv_transition_caution_note_arr_pc":["\u79fb\u52d5\u5f8c\u306e\u4e88\u7d04\u30b5\u30a4\u30c8\u3067\u3001\u5546\u54c1\u30fb\u4e88\u7d04\u5185\u5bb9\u306b\u3064\u3044\u3066\u9593\u9055\u3044\u304c\u306a\u3044\u304b<strong>\u5fc5\u305a\u518d\u78ba\u8a8d<\/strong>\u3057\u3066\u304f\u3060\u3055\u3044\u3002"],"rsv_transition_caution_note_arr_sp":["\u79fb\u52d5\u5f8c\u306e\u4e88\u7d04\u30b5\u30a4\u30c8\u3067\u3001\u5546\u54c1\u30fb\u4e88\u7d04\u5185\u5bb9\u306b\u3064\u3044\u3066\u9593\u9055\u3044\u304c\u306a\u3044\u304b<strong>\u5fc5\u305a\u518d\u78ba\u8a8d<\/strong>\u3057\u3066\u304f\u3060\u3055\u3044\u3002"]},"point_list":{"point_info":[{"name":"PayPay\u30dd\u30a4\u30f3\u30c8","unit":"\u30dd\u30a4\u30f3\u30c8","rate_min":"1","rate_max":"1","tax":"1","logo_url":"","point_min":279,"logo_width":"","logo_height":""}]},"hotel_price_min":24840,"hotel_price_max":31060,"free_cancellation_days":31,"free_cancellation_date":null,"free_cancellation_time":null,"non_refundable_days":7,"non_refundable_date":null,"non_refundable_time":null,"cancellation_policy_txt":"<p>\u3054\u4e88\u7d04\u5f8c\u306f\u4e0b\u8a18\u306e\u898f\u5b9a\u306b\u5f93\u3063\u3066\u30ad\u30e3\u30f3\u30bb\u30eb\u6599\u304c\u767a\u751f\u3057\u307e\u3059\u3002<\/p>\n\u30c1\u30a7\u30c3\u30af\u30a4\u30f3\u65e5 31\u65e5\u524d\u307e\u3067\uff1a\u7121\u6599\n\u30c1\u30a7\u30c3\u30af\u30a4\u30f3\u65e5 30\u65e5\u524d\uff5e\uff1a\u5bbf\u6cca\u6599\u91d1\u306e20%\n\u30c1\u30a7\u30c3\u30af\u30a4\u30f3\u65e5 14\u65e5\u524d\uff5e\uff1a\u5bbf\u6cca\u6599\u91d1\u306e50%\n\u30c1\u30a7\u30c3\u30af\u30a4\u30f3\u65e5 7\u65e5\u524d\uff5e\uff1a\u5bbf\u6cca\u6599\u91d1\u306e100%\n\u7121\u9023\u7d61\u30ad\u30e3\u30f3\u30bb\u30eb\uff1a\u5bbf\u6cca\u6599\u91d1\u306e100%\n<p>\u30ad\u30e3\u30f3\u30bb\u30eb\u898f\u5b9a\u306e\u8a73\u7d30\u306f\u4e88\u7d04\u30b5\u30a4\u30c8\u306b\u3066\u518d\u5ea6<strong>\u5fc5\u305a<\/strong>\u3054\u78ba\u8a8d\u304f\u3060\u3055\u3044\u3002<\/p>","cancellation_data_type":1,"cancellation_kwd_type":null,"chkin_from_full":"16:00","chkin_till_full":"18:30","chkout_before_full":"10:00","image_info":[{"category":"plan","count":0,"url":null,"small_url":null,"caption":null},{"category":"room","count":3,"url":"https:\/\/www.img-ikyu.com\/contents\/common\/image\/acc9\/00050789\/1\/xl\/11528996.jpg","small_url":"https:\/\/www.img-ikyu.com\/contents\/common\/image\/acc9\/00050789\/1\/md\/11528996.jpg?auto=compress,format&lossless=0&fit=crop&w=130&h=100","caption":null},{"category":"meal","count":0,"url":null,"small_url":null,"caption":null}],"cancellation_status":"\u30ad\u30e3\u30f3\u30bb\u30eb\u7121\u6599(\u671f\u9650\u3042\u308a)","chiiki_kanko_coupon_data_arr":null,"chiiki_kanko_coupon_block_text":null,"area_info":{"dist_id":8,"coty_id":133}},{"hotel_id":48248,"hotel_name":"\u6d77\u3068\u5cf6\u306e\u96a0\u308c\u5bbf Archipelago TSUSHIMA -\u6ccaRutto","phone":"080-2976-4641","plan_id":1018176233,"plan_code":"11465504","plan_name":"\u3010\u30b9\u30bf\u30f3\u30c0\u30fc\u30c9\u30d7\u30e9\u30f3\u3011\uff1c\u7d20\u6cca\u307e\u308a\uff1e\u7d76\u666f\u3092\u671b\u3080\u4e00\u68df\u8cb8\u3057\u3067\u30ab\u30e9\u30aa\u30b1\u6b4c\u3044\u653e\u984c","room_id":721008260,"room_code":"10137853|11465504","room_name":"Archipelago TSUSHIMA \/ 92.72\u5e73\u7c73","room_type_name":"","room_org_name":"Archipelago TSUSHIMA","room_size":"92.72\u5e73\u7c73","room_size_omit":"92\u33a1","room_size_dtl":"92.72\u33a1","appeal_text":"\u7d20\u6cca\u307e\u308a\u30d7\u30e9\u30f3\u672c\u30d7\u30e9\u30f3\u306f\u3001\u304a\u98df\u4e8b\u306e\u63d0\u4f9b\u306f\u3054\u3056\u3044\u307e\u305b\u3093\u3002\u304a\u98df\u4e8b\u306f\u5916\u3067\u697d\u3057\u307f\u305f\u3044\u30fb\u98df\u6750\u3092\u8cb7\u3063\u3066\u90e8\u5c4b\u3067\u8abf\u7406\u3057\u305f\u3044\u30fb\u624b\u8efd\u306b\u65c5\u884c\u3092\u697d\u3057\u307f\u305f\u3044\u3068\u3044\u3046\u65b9\u306b\u3074\u3063\u305f\u308a\u306a\u7d20\u6cca\u307e\u308a\u30d7\u30e9\u30f3\u3002\u30ab\u30e9\u30aa\u30b1\u30b7\u30b9\u30c6\u30e0\u30fb\u30b9\u30bf\u30b8\u2026","room_type":null,"smoking":1,"pln_flgs_arr":["10101","30001","30003","30004","30005","30018","30032","30034","30036","30047","30065","30801"],"agent_id":39979,"agent_logo":"https:\/\/www.tour.ne.jp\/element\/j_hotel\/shared\/images\/ic_agt_39979.gif","agent_name":"Yahoo!\u30c8\u30e9\u30d9\u30eb","is_inaccurate_price_agent":false,"accept_type":null,"pay_type":1,"pay_cash_local":0,"brand_id":null,"bf_stat":1,"dinner_stat":1,"lunch_stat":1,"unit_price":[[15530,0,0,0,0,0,0]],"unit_price_orig":[[17250,0,0,0,0,0,0]],"total_price_before":31060,"total_price_orig":34500,"total_price":31060,"discount_value":3440,"discount":0,"stock_stat":5,"stock":1,"stock_up_time":"1\u65e5\u524d","up_date_interval":140347,"vacancy_checked":2,"realtime":"f","url_plan":"https:\/\/www.tour.ne.jp\/j_hotel\/agt_link\/?hotel_id=48248&plan_id=1018176233&room_id=721008260&plan_code=11465504&room_code=10137853|11465504&agent_id=39979&stay=1&adult=2&room=1&price_before=31060&price=31060&price_orig=34500&discount_value=3440&plan_url=&pay_type=1&dsp_group=1&call=3&display_rank=1_3_1&goto_type=0&gl=0","agent_url_pc":null,"agent_url_sp":null,"coupon_key":null,"coupon_code":null,"group_sort":3,"group_plan_sort":1,"group_plan_count":1,"goto_type":0,"goto_price":{"payment":31060,"discount":0,"coupon":0,"discount_limit":0,"coupon_limit":0},"goto_end_date":"20230630","goto_out_of_term":2,"goto_login":2,"goto_coupon_type":3,"goto_nationwide_data_arr":[{"campaign_code":"191","campaign_name":"\u65b0\u3046\u3069\u3093\u770c\u6cca\u307e\u3063\u3066\u304b\u304c\u308f\u5272","campaign_dp_ymd_end":"20230630","coupon_list":[{"agent_id":"39979","agent_name":"Yahoo!\u30c8\u30e9\u30d9\u30eb","coupon_no":"0","coupon_name":"","url":""}]}],"goto_block_text":null,"invoice":{"inv_dsp_type":2,"inv_on_pay_type":null,"inv_pre_pay_type":2},"vendor_detail":{"rsv_member":"3","rsv_member_advance":"3","rsv_member_local":null,"rsv_pay_bank":"0","rsv_pay_card_advance":1,"rsv_pay_card_local":0,"rsv_pay_debitcard":1,"rsv_pay_code":1,"rsv_pay_emoney":0,"rsv_pay_giftcard":0,"rsv_pay_store":0,"rsv_pay_cash":0,"rsv_card_preregister":0,"rsv_card_list_advance":{"visa":1,"master":1,"jcb":1,"diners":1,"amex":1,"discover":0,"union_pay":0},"rsv_card_list_local":{"visa":0,"master":0,"jcb":0,"diners":0,"amex":0},"rsv_code_list":{"paypay":1,"line_pay":0},"rsv_emoney_list":{"apple_pay":0},"rsv_giftcard_list":{"jtb_travel_gift":0},"rsv_pay_card":"1","rsv_card_list":{"visa":"1","master":"1","jcb":"1","diners":"1","amex":"1"},"rsv_note":null,"rsv_card_note_advance_pc":"","rsv_card_note_advance_sp":"","rsv_card_note_local_pc":"","rsv_card_note_local_sp":"","rsv_code_note_pc":"\u4f1a\u54e1\u767b\u9332\u5fc5\u9808","rsv_code_note_sp":"\u4f1a\u54e1\u767b\u9332\u5fc5\u9808","rsv_bank_note_pc":"","rsv_bank_note_sp":"","rsv_payment_note_pc":"","rsv_payment_note_sp":"","rsv_transition_payment_caution_note_pc":"","rsv_transition_payment_caution_note_sp":"","rsv_transition_note_arr_sp":[],"rsv_transition_payment_title":"\u30b5\u30a4\u30c8\u79fb\u52d5\u5f8c\u306e\u78ba\u8a8d","rsv_transition_payment_price_detail_title":"\u30b5\u30a4\u30c8\u79fb\u52d5\u5f8c\u306e\u6ce8\u610f","rsv_transition_caution_note_arr_pc":["\u79fb\u52d5\u5f8c\u306e\u4e88\u7d04\u30b5\u30a4\u30c8\u3067\u3001\u5546\u54c1\u30fb\u4e88\u7d04\u5185\u5bb9\u306b\u3064\u3044\u3066\u9593\u9055\u3044\u304c\u306a\u3044\u304b<strong>\u5fc5\u305a\u518d\u78ba\u8a8d<\/strong>\u3057\u3066\u304f\u3060\u3055\u3044\u3002"],"rsv_transition_caution_note_arr_sp":["\u79fb\u52d5\u5f8c\u306e\u4e88\u7d04\u30b5\u30a4\u30c8\u3067\u3001\u5546\u54c1\u30fb\u4e88\u7d04\u5185\u5bb9\u306b\u3064\u3044\u3066\u9593\u9055\u3044\u304c\u306a\u3044\u304b<strong>\u5fc5\u305a\u518d\u78ba\u8a8d<\/strong>\u3057\u3066\u304f\u3060\u3055\u3044\u3002"]},"point_list":{"point_info":[{"name":"PayPay\u30dd\u30a4\u30f3\u30c8","unit":"\u30dd\u30a4\u30f3\u30c8","rate_min":"1","rate_max":"1","tax":"1","logo_url":"","point_min":310,"logo_width":"","logo_height":""}]},"hotel_price_min":24840,"hotel_price_max":31060,"free_cancellation_days":15,"free_cancellation_date":null,"free_cancellation_time":null,"non_refundable_days":3,"non_refundable_date":null,"non_refundable_time":null,"cancellation_policy_txt":"<p>\u3054\u4e88\u7d04\u5f8c\u306f\u4e0b\u8a18\u306e\u898f\u5b9a\u306b\u5f93\u3063\u3066\u30ad\u30e3\u30f3\u30bb\u30eb\u6599\u304c\u767a\u751f\u3057\u307e\u3059\u3002<\/p>\n\u30c1\u30a7\u30c3\u30af\u30a4\u30f3\u65e5 15\u65e5\u524d\u307e\u3067\uff1a\u7121\u6599\n\u30c1\u30a7\u30c3\u30af\u30a4\u30f3\u65e5 14\u65e5\u524d\uff5e\uff1a\u5bbf\u6cca\u6599\u91d1\u306e50%\n\u30c1\u30a7\u30c3\u30af\u30a4\u30f3\u65e5 7\u65e5\u524d\uff5e\uff1a\u5bbf\u6cca\u6599\u91d1\u306e80%\n\u30c1\u30a7\u30c3\u30af\u30a4\u30f3\u65e5 3\u65e5\u524d\uff5e\uff1a\u5bbf\u6cca\u6599\u91d1\u306e100%\n\u7121\u9023\u7d61\u30ad\u30e3\u30f3\u30bb\u30eb\uff1a\u5bbf\u6cca\u6599\u91d1\u306e100%\n<p>\u30ad\u30e3\u30f3\u30bb\u30eb\u898f\u5b9a\u306e\u8a73\u7d30\u306f\u4e88\u7d04\u30b5\u30a4\u30c8\u306b\u3066\u518d\u5ea6<strong>\u5fc5\u305a<\/strong>\u3054\u78ba\u8a8d\u304f\u3060\u3055\u3044\u3002<\/p>","cancellation_data_type":1,"cancellation_kwd_type":null,"chkin_from_full":"16:00","chkin_till_full":"18:30","chkout_before_full":"10:00","image_info":[{"category":"plan","count":0,"url":null,"small_url":null,"caption":null},{"category":"room","count":3,"url":"https:\/\/www.img-ikyu.com\/contents\/common\/image\/acc9\/00050789\/1\/xl\/11528996.jpg","small_url":"https:\/\/www.img-ikyu.com\/contents\/common\/image\/acc9\/00050789\/1\/md\/11528996.jpg?auto=compress,format&lossless=0&fit=crop&w=130&h=100","caption":null},{"category":"meal","count":0,"url":null,"small_url":null,"caption":null}],"cancellation_status":"\u30ad\u30e3\u30f3\u30bb\u30eb\u7121\u6599(\u671f\u9650\u3042\u308a)","chiiki_kanko_coupon_data_arr":null,"chiiki_kanko_coupon_block_text":null,"area_info":{"dist_id":8,"coty_id":133}}],"room_type_induction":false,"kwd_except_induction":false,"app_goto_modal_text":"","result_cd":0},"area_info":{"count":1,"coty_name":"\u9999\u5ddd\u770c","area_name":"\u89b3\u97f3\u5bfa","dist_id":"8","coty_id":"133","city_id":"10242","area_id":"784"},"calendar_info":[],"month_exists":[],"calender_visible":false,"more_nights_plan_list":[],"dp_m":null,"ESCAPE_REQ":{"dp_ym":null,"dp_m":null,"dp_d":null,"offset":null,"is_pastday":null,"dist1":null,"coty1":null,"city1":null,"area1":null,"kwd":null,"multiple_dist1":null,"multiple_coty1":null,"multiple_city1":null,"multiple_area1":null,"multiple_area":null,"kwd_hotel":null,"kwd_plan":null,"kwd_except":null,"kwd_except_hotel":null,"kwd_except_plan":null,"kwd_mode":null,"kwd_type":"2","kwd_except_type":"2","dest_kwd":null,"dest_kwd_type":1,"dest_set1":null,"dest_set2":null,"dest_set3":null,"dest_name1":null,"dest_name2":null,"dest_name3":null,"sch":null,"dp_ymd":null,"stay":1,"adult":2,"child1":0,"child2":0,"child3":0,"child4":0,"child5":0,"child6":0,"room":1,"mny_sm":null,"mny_bg":null,"roomtype":null,"roomtype_map":null,"smoking":null,"meal":null,"mealtype_map":null,"hotel_type":null,"grade":null,"review_pt":null,"hotel_rank":null,"h-net":null,"h-smokeout":null,"h-open_spa_room":null,"h-room_meal_plan":null,"h-connecting_room":null,"h-spa":null,"h-big_bath":null,"h-open_spa":null,"h-reserved_bath":null,"h-fontal":null,"h-vistaed_bath":null,"h-mixed_bath":null,"h-nigori_spa":null,"h-sauna":null,"h-jacuzzi":null,"h-other_lowtemp":null,"h-bedrock_bath":null,"h-station_5m":null,"h-parking":null,"h-shop":null,"h-banquet_room":null,"h-business_room":null,"h-pool":null,"h-gym":null,"h-ping_pong":null,"h-bar_lounge":null,"h-transportation_service":null,"h-limousine":null,"h-pet":null,"h-room_service":null,"h-laundry_service":null,"h-esthetic_clinic":null,"h-massage":null,"h-ski_rental":null,"h-board_rental":null,"h-pc_rental":null,"h-copier":null,"h-fax":null,"h-wheelchair_accept":null,"h-wheelchair_rental":null,"h-barrier_free_toilet":null,"h-english":null,"h-chinese":null,"h-korean":null,"agent_id":null,"ctl_type":null,"p-smokeout":null,"p-smoking":null,"p-open_spa_room":null,"p-spa_room":null,"p-net":null,"p-sea_view":null,"p-night_view":null,"p-room_meal_plan":null,"p-dinner_viking":null,"p-late_checkout":null,"p-early_checkin":null,"p-credit":null,"p-long_stay":null,"p-family":null,"p-couple":null,"p-female":null,"p-anniversary":null,"p-quo":null,"p-onsite_payment":null,"p-pre_payment":null,"p-stay24h":null,"p-business":null,"p-discount_early":null,"p-discount_just_before":null,"p-wakeari":null,"p-esthetic":null,"p-point_rakuten":null,"p-point_ikkyu":null,"p-point_ponta":null,"p-point_jtb":null,"p-point_trip":null,"p-point_gv":null,"p-point_br":null,"p-credit_onsite":null,"p-student":null,"p-member_reg":null,"p-bf_viking":null,"p-bath_toilet_separate":null,"p-bath_toilet_attached":null,"p-wifi":null,"p-point_t_point":null,"p-child_welcome":null,"p-pet":null,"p-barrier_free_toilet":null,"p-telework":null,"p-goto":null,"p-invoice":null,"p-ticket":null,"p-ticket_expo2025":null,"hotel_group":null,"x1":0,"y1":0,"x2":0,"y2":0,"x":0,"y":0,"r":0,"longitude":null,"latitude":null,"radius":null,"landmark":null,"spot_type":null,"spot_id":null,"real":null,"reduce_flag":1,"dsp_group":"1","dsp_sort":2,"dsp_type":null,"pg":1,"special":null,"add_limit":null,"custom_url":null,"api_model":null,"api_agent_id":null,"page":null,"count_type":null,"refpage":null,"onsen_id":null,"month":null,"hotel_id":"48248","rank":"10","dsp_knd":"2","key_hotel":null,"sitetype":"0","map_page":0,"more_nights_plan":null,"more_nights_plan_default_ymd":null,"gl":0,"ext_name":null},"nolink_photo_agent":[10322],"nolink_review_agent":[10322],"canonical_list_spot":{"spot_1000_127009":"\/j_hotel\/special\/tdr\/","spot_1000_127010":"\/j_hotel\/special\/tdr\/"},"display_f":"pc","is_sp":false,"chk_condition":0}
検索中
海と島の隠れ宿 Archipelago TSUSHIMA -泊Ruttoの最安値
1部屋1泊あたりの宿泊料金 月別最安値
-
-
-
-
-
-
-
-
-
-
-
-
4月の日別最安値
大人2名 / 1泊の料金(諸税込)
| 4月8日(水) |
24,840円
|
| 4月9日(木) |
-
|
| 4月10日(金) |
29,020円
|
| 4月11日(土) |
-
|
| 4月12日(日) |
-
|
| 4月13日(月) |
24,840円
|
| 4月14日(火) |
24,840円
|
| 4月15日(水) |
-
|
| 4月16日(木) |
24,840円
|
| 4月17日(金) |
24,840円
|
| 4月18日(土) |
-
|
| 4月19日(日) |
24,840円
|
| 4月20日(月) |
-
|
| 4月21日(火) |
24,840円
|
| 4月22日(水) |
24,840円
|
| 4月23日(木) |
24,840円
|
| 4月24日(金) |
-
|
| 4月25日(土) |
-
|
| 4月26日(日) |
41,400円
|
| 4月27日(月) |
41,400円
|
| 4月28日(火) |
41,400円
|
| 4月29日(水) |
-
|
| 4月30日(木) |
-
|
5月の日別最安値
大人2名 / 1泊の料金(諸税込)
| 5月1日(金) |
41,400円
|
| 5月2日(土) |
-
|
| 5月3日(日) |
-
|
| 5月4日(月) |
-
|
| 5月5日(火) |
-
|
| 5月6日(水) |
-
|
| 5月7日(木) |
-
|
| 5月8日(金) |
-
|
| 5月9日(土) |
32,650円
|
| 5月10日(日) |
-
|
| 5月11日(月) |
27,950円
|
| 5月12日(火) |
-
|
| 5月13日(水) |
27,950円
|
| 5月14日(木) |
27,950円
|
| 5月15日(金) |
27,950円
|
| 5月16日(土) |
32,650円
|
| 5月17日(日) |
27,950円
|
| 5月18日(月) |
27,950円
|
| 5月19日(火) |
27,950円
|
| 5月20日(水) |
27,950円
|
| 5月21日(木) |
27,950円
|
| 5月22日(金) |
27,950円
|
| 5月23日(土) |
-
|
| 5月24日(日) |
27,950円
|
| 5月25日(月) |
27,950円
|
| 5月26日(火) |
27,950円
|
| 5月27日(水) |
27,950円
|
| 5月28日(木) |
27,950円
|
| 5月29日(金) |
-
|
| 5月30日(土) |
-
|
| 5月31日(日) |
-
|
6月の日別最安値
大人2名 / 1泊の料金(諸税込)
| 6月1日(月) |
27,950円
|
| 6月2日(火) |
27,950円
|
| 6月3日(水) |
27,950円
|
| 6月4日(木) |
27,950円
|
| 6月5日(金) |
27,950円
|
| 6月6日(土) |
32,650円
|
| 6月7日(日) |
27,950円
|
| 6月8日(月) |
27,950円
|
| 6月9日(火) |
27,950円
|
| 6月10日(水) |
27,950円
|
| 6月11日(木) |
27,950円
|
| 6月12日(金) |
27,950円
|
| 6月13日(土) |
32,650円
|
| 6月14日(日) |
27,950円
|
| 6月15日(月) |
27,950円
|
| 6月16日(火) |
27,950円
|
| 6月17日(水) |
27,950円
|
| 6月18日(木) |
27,950円
|
| 6月19日(金) |
27,950円
|
| 6月20日(土) |
-
|
| 6月21日(日) |
27,950円
|
| 6月22日(月) |
27,950円
|
| 6月23日(火) |
27,950円
|
| 6月24日(水) |
27,950円
|
| 6月25日(木) |
-
|
| 6月26日(金) |
27,950円
|
| 6月27日(土) |
-
|
| 6月28日(日) |
27,950円
|
| 6月29日(月) |
27,950円
|
| 6月30日(火) |
27,950円
|
7月の日別最安値
大人2名 / 1泊の料金(諸税込)
| 7月1日(水) |
37,260円
|
| 7月2日(木) |
37,260円
|
| 7月3日(金) |
37,260円
|
| 7月4日(土) |
46,590円
|
| 7月5日(日) |
37,260円
|
| 7月6日(月) |
37,260円
|
| 7月7日(火) |
37,260円
|
| 7月8日(水) |
37,260円
|
| 7月9日(木) |
37,260円
|
| 7月10日(金) |
37,260円
|
| 7月11日(土) |
50,718円
|
| 7月12日(日) |
40,572円
|
| 7月13日(月) |
40,572円
|
| 7月14日(火) |
40,572円
|
| 7月15日(水) |
40,572円
|
| 7月16日(木) |
40,572円
|
| 7月17日(金) |
40,572円
|
| 7月18日(土) |
50,718円
|
| 7月19日(日) |
50,718円
|
| 7月20日(月) |
40,572円
|
| 7月21日(火) |
40,572円
|
| 7月22日(水) |
40,572円
|
| 7月23日(木) |
40,572円
|
| 7月24日(金) |
40,572円
|
| 7月25日(土) |
50,718円
|
| 7月26日(日) |
40,572円
|
| 7月27日(月) |
40,572円
|
| 7月28日(火) |
40,572円
|
| 7月29日(水) |
40,572円
|
| 7月30日(木) |
40,572円
|
| 7月31日(金) |
40,572円
|
8月の日別最安値
大人2名 / 1泊の料金(諸税込)
| 8月1日(土) |
50,718円
|
| 8月2日(日) |
40,572円
|
| 8月3日(月) |
-
|
| 8月4日(火) |
-
|
| 8月5日(水) |
40,572円
|
| 8月6日(木) |
40,572円
|
| 8月7日(金) |
40,572円
|
| 8月8日(土) |
50,718円
|
| 8月9日(日) |
50,718円
|
| 8月10日(月) |
50,718円
|
| 8月11日(火) |
-
|
| 8月12日(水) |
50,718円
|
| 8月13日(木) |
-
|
| 8月14日(金) |
-
|
| 8月15日(土) |
50,718円
|
| 8月16日(日) |
40,572円
|
| 8月17日(月) |
40,572円
|
| 8月18日(火) |
40,572円
|
| 8月19日(水) |
40,572円
|
| 8月20日(木) |
40,572円
|
| 8月21日(金) |
40,572円
|
| 8月22日(土) |
50,718円
|
| 8月23日(日) |
50,718円
|
| 8月24日(月) |
40,572円
|
| 8月25日(火) |
40,572円
|
| 8月26日(水) |
40,572円
|
| 8月27日(木) |
40,572円
|
| 8月28日(金) |
40,572円
|
| 8月29日(土) |
50,718円
|
| 8月30日(日) |
40,572円
|
| 8月31日(月) |
40,572円
|
9月の日別最安値
大人2名 / 1泊の料金(諸税込)
| 9月1日(火) |
40,572円
|
| 9月2日(水) |
40,572円
|
| 9月3日(木) |
40,572円
|
| 9月4日(金) |
40,572円
|
| 9月5日(土) |
50,718円
|
| 9月6日(日) |
40,572円
|
| 9月7日(月) |
40,572円
|
| 9月8日(火) |
40,572円
|
| 9月9日(水) |
40,572円
|
| 9月10日(木) |
40,572円
|
| 9月11日(金) |
40,572円
|
| 9月12日(土) |
50,718円
|
| 9月13日(日) |
50,718円
|
| 9月14日(月) |
40,572円
|
| 9月15日(火) |
40,572円
|
| 9月16日(水) |
40,572円
|
| 9月17日(木) |
40,572円
|
| 9月18日(金) |
40,572円
|
| 9月19日(土) |
-
|
| 9月20日(日) |
-
|
| 9月21日(月) |
50,718円
|
| 9月22日(火) |
50,718円
|
| 9月23日(水) |
40,572円
|
| 9月24日(木) |
40,572円
|
| 9月25日(金) |
40,572円
|
| 9月26日(土) |
40,572円
|
| 9月27日(日) |
40,572円
|
| 9月28日(月) |
40,572円
|
| 9月29日(火) |
40,572円
|
| 9月30日(水) |
40,572円
|
10月の日別最安値
大人2名 / 1泊の料金(諸税込)
| 10月1日(木) |
30,430円
|
| 10月2日(金) |
30,430円
|
| 10月3日(土) |
-
|
| 10月4日(日) |
-
|
| 10月5日(月) |
-
|
| 10月6日(火) |
-
|
| 10月7日(水) |
-
|
| 10月8日(木) |
-
|
| 10月9日(金) |
-
|
| 10月10日(土) |
-
|
| 10月11日(日) |
-
|
| 10月12日(月) |
-
|
| 10月13日(火) |
-
|
| 10月14日(水) |
-
|
| 10月15日(木) |
-
|
| 10月16日(金) |
-
|
| 10月17日(土) |
-
|
| 10月18日(日) |
-
|
| 10月19日(月) |
-
|
| 10月20日(火) |
-
|
| 10月21日(水) |
-
|
| 10月22日(木) |
-
|
| 10月23日(金) |
-
|
| 10月24日(土) |
-
|
| 10月25日(日) |
-
|
| 10月26日(月) |
-
|
| 10月27日(火) |
-
|
| 10月28日(水) |
-
|
| 10月29日(木) |
-
|
| 10月30日(金) |
-
|
| 10月31日(土) |
-
|
2026年4月~2027年3月の中で、海と島の隠れ宿 Archipelago TSUSHIMA -泊Ruttoの最安値は24,840円(4月)です。
4月7日時点
基本情報・アクセス
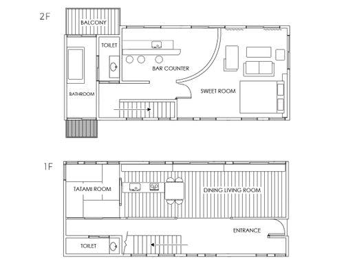
和モダンテイストの落ち着きあるインテリアに現代アートを融合させた一棟貸しのゲストハウス「TSUSHIMA(ツシマ)」。眼前に広がる瀬戸内海の多島美を眺めながら、穏やかに流れる時をお過ごしください。
客室
写真提供:Yahoo!トラベル